IDC AG Zentralschweiz (Hauptsitz)
Kägiswilerstrasse 29
6060 Sarnen
IDC-Hotline: 0900 980 980 (3.13/Min.)
Kostenlose Spezialnummer für KEYMEMBER
IDC Training gültig für:
Mac
,
Win
AC27
Dat. 08.01.2024 | Übungsdauer: 270 min | ID-Nr. 3499
Übungsdauer: 270 min
ID-Nr: 3499

Ausführung - M3 LEHRGANG

In dieser Übung lernen Sie wichtige Werkzeuge und Funktionen für die Ausführungsplanung.

 

Sobald Sie in den Werkplänen 1:50 arbeiten, werden mehr Details sichtbar. Für die Werkplanung gilt es, diese nun sauber auszuarbeiten. Lernen Sie im Modul 3 Funktionen, Werkzeuge und Vorgehensweisen kennen, welche Ihnen die Planung vereinfachen.

Fenster- / Türanpassungen

Erfahren Sie in diesem Kapitel mehr über die detaillierten Fenster. Die Einstellungen werden für das Verständnis Schritt für Schritt gemacht, damit Sie das Ergebnis der einzelnen Einstellungen direkt sehen können. In der Praxis ist es auch richtig, mehrere Einstellungen vorzunehmen, bevor man die Einstellungen mit OK bestätigt.

Schichteinzug Grundriss

  • Öffnen Sie den Ausschnitt Schichteinzug im Ordner Fenster- / Türanpassungen.
  • Aktivieren Sie das Fenster und öffnen Sie dessen Einstellungen.
  • Öffnen Sie das Menü Fenster-Einstellungen und wählen Sie im Dropdown-Menü den Schichteinzug.
  • Nehmen Sie die Einstellungen gemäss Bild vor:
    • Schichteinzug: Sonderleibung 3
    • Schichtwahl zur Bearbeitung: Beide Anschläge bearbeiten / Aussenseite / Schicht 1
    • Schicht einziehen: ja
    • Schichtstärke: Original
  • Bestätigen Sie die Einstellungen mit OK und prüfen Sie das Ergebnis.

 

Die äusserste Schicht wird um die Dämmung gezogen, damit Sie einen sauberen Abschluss vom Anschlag erhalten.

 

  • Öffnen Sie die Einstellungen des Fensters erneut.
  • Wählen Sie im Dropdown-Menü den Fensterbank Aussen... .
  • Stellen Sie den Überstand jeweils auf 0.02.
  • Bestätigen Sie die Einstellungen mit OK und prüfen Sie das Ergebnis.

 

Die Fensterbank wird auf den Seiten um die eingestellten 2cm erweitert. Das Fenster sieht nun im Grundriss korrekt aus.

Sonnenschutz

Um die Einstellungen für den Sonnenschutz vorzunehmen wechseln wir in den Schnitt, um das Ergebnis besser zu sehen.

  • Öffnen Sie den Ausschnitt Schnitt.
  • Aktivieren Sie das Fenster und öffnen Sie dessen Einstellungen.
  • Wählen Sie im Dropdown-Menü den Sonnenschutz.
  • Aktivieren Sie den Haken Sonnenschutz und nehmen Sie die Einstellungen gemäss Bild vor:
    • Sonnenschutz: Aussen-Jalousie
    • Platzierung: Hinter Fassade angebracht
    • Führungsschienen: ja
    • 2D-Symbol: aus
    • Abdeckungstiefe: 0.05
    • Kasten Tiefe: 0.13
    • Kasten Höhe: 0.20
  • Bestätigen Sie mit OK.

Kellerfenster Grundriss

Lernen Sie in den folgenden Schritten, wie Sie ein Fenster optimal einstellen, wenn dieses innen angeschlagen ist.

  • Öffnen Sie den Ausschnitt Kellerfenster Grundriss.
  • Aktivieren Sie das Fenster und öffnen Sie dessen Einstellungen.
  • Wählen Sie im Dropdown-Menü den Schichteinzug.
  • Nehmen Sie die Einstellungen gemäss Bild vor:
    • Schichteinzug: Sonderlaibung 3
    • Schichtwahl zur Bearbeitung: Beide Anschläge bearbeiten / Aussenseite / Schicht 1
    • Schicht einziehen: ja
    • Schichtstärke: Eigene
    • Eigene Stärke: 0.08
    • Ausrichtung Schraffur: Eingelenkt
    • Trennlinie am Einzug: ja
  • Bestätigen Sie die Einstellungen mit OK und prüfen Sie das Ergebnis.

 

Aktuell ist noch die Wandkonturlinie der Innenwand zu sehen. Lernen Sie im nächsten Schritt, wie Sie diese entfernen.

 

  • Öffnen Sie die Einstellungen des Fensters erneut.
  • Wählen Sie im Dropdown-Menü das Register Wandkonturlinien... .
  • Nehmen Sie die Einstellungen gemäss Bild vor:
    • Automatische Einstellungen: Haken entfernen
    • Wandkonturlinien Innen 1:50  / 1:100: Haken entfernen
  • Bestätigen Sie die Einstellungen mit OK und prüfen Sie das Ergebnis.

 

Im Grundriss sieht das Fenster nun korrekt aus.

Kellerfenster Schnitt

Wechseln Sie für die weiteren Einstellungen in den Ausschnitt Kellerfenster Schnitt, um das Ergebnis besser zu sehen.

 

  • Aktivieren Sie das Fenster und öffnen Sie dessen Einstellungen.
  • Wählen Sie im Dropdown-Menü das Register Sturzsystem... .
  • Nehmen Sie die Einstellungen gemäss Bild vor:
    • Sturzsystem: Haken setzen
    • Stärke vorne: 0.32

 

  • Wählen Sie im Dropdown-Menü Grundriss und Schnitteigenschaften... .
  • Scrollen Sie zum Kapitel Sturzsystem und nehmen Sie die Einstellungen gemäss Bild vor:
    • Sturzbereich-Schraffurtyp: Dämmstoff, allgemein vertikal

 

  • Wählen Sie im Dropdown-Menü das Register Rahmenprofile ... .
  • Nehmen Sie die Einstellungen gemäss Bild vor:
    • Breite links / rechts / unten: 0.10
    • Breite oben: 0.12

 

  • Wählen Sie im Dropdown-Menü das Register Fensterbank Aussen ... .
  • Nehmen Sie die Einstellungen gemäss Bild vor:
    • Überstand links / rechts: 0.00
    • Fensterbank Typ: Metallfensterbank mit Dämmung
    • Stärke Fensterbankende: 0.05

 

Bestätigen Sie die gemachten Einstellungen mit OK und prüfen Sie das Ergebnis.

Grundrissdarstellung

Für die Grundrissdarstellung kann die Beschriftung von den Fensterkoten angepasst werden.

 

  • Öffnen Sie den Ausschnitt Kellerfenster Grundriss erneut.
  • Aktivieren Sie das Fenster und öffnen Sie deren Einstellungen (T).
  • Wählen Sie im Dropdown-Menü das Register Fensterkoten.
  • Vergeben Sie für die Bezeichnung der Koten neue Namen gemäss Bild:
    • UK. R. ST
    • UK. F. ST
    • OK. F. FB
    • OK. R. BR
  • Bestätigen Sie mit OK und prüfen Sie das Ergebnis.

Etiketten

Um den Plan leserlicher zu gestalten, können Sie verknüpfte Etiketten auf Elemente platzieren.

  • Öffnen Sie den Ausschnitt Etiketten platzieren.
  • Machen Sie einen Doppelklick auf die Etiketteinstellungen.
  • Wählen Sie den Favorit Fertigmasse Fenster.
  • Ändern Sie die Ebenen auf 160 Beschriftungen Ausführung und bestätigen Sie mit OK.
  • Aktivieren Sie alle Fenster.
    • Wählen Sie das Fensterwerkzeug und drücken Sie Ctrl/Cmd + A.
  • Wählen Sie über das Menü Extras den Befehl Ausgewählte Elemente etikettieren.

 

 

Die Etiketten werden automatisch mit einer Verknüpfung zum Fenster platziert. Sie können die Position der Etiketten beliebig anpassen, ohne dabei die Verknüpfung zu verlieren.

 

 


SwissLabel (swissTools)

 

Als KEYMEMBER können Sie das swissTool SwissLabel für das gleichzeitige Etikettieren von mehreren Elementen verwenden. Der Vorteil gegenüber der Funktion ausgewählte Elemente etikettieren über das Menü Extras ist, dass die Position der zu platzierenden Etiketten vorgängig bestimmt werden kann.

 

  • Löschen Sie die zuvor platzierten Etiketten.
  • Wählen Sie in den Etikett-Einstellungen den Favorit Fertigmasse Fenster.
  • Ändern Sie die Ebene auf 160 Beschriftungen Ausführung und bestätigen Sie mit OK.
  • Öffnen Sie über das Menü swissTools / Dokumentation die SwissLabel-Palette.
  • Klicken Sie auf den zweiten Button in der Palette um die SwissLabel-Einstellungen zu öffnen.
  • Bestimmen Sie links den Ankerpunkt des Elements und somit an welcher Position das Etikett platziert werden soll. Rechts bestimmen Sie den Versatz vom Element zur Etikette.
    • Ankerpunkt: unten links
    • Offset: Innen
    • Offset Horizontal: 0.15
    • Offset Vertikal: 0.15
    • Bestätigen Sie mit OK
  • Aktivieren Sie alle Fenster.
  • Klicken Sie auf den ersten Button in der SwissLabel-Palette, um die Etiketten zu platzieren.

Türe / Mehrschichtiges Bauteil

In diesem Kapitel wird die Verbindung der Türe zum Bodenaufbau genauer erklärt.

 

  • Öffnen Sie den Ausschnitt Unterlagsboden Türe.

 

Bei der oberen Türe läuft der Bodenbelag sauber durch die Türöffnung. Bei der unteren Türe gibt es aktuell einen Unterbruch, obwohl das Deckenelement ohne Unterbruch modelliert wurde. Die Verschneidung funktioniert nur, wenn die Decke mehrschichtig ist und nicht als Kern definiert wurde. Lernen Sie im nächsten Abschnitt, wie Sie den Überzug für das Kellergeschoss einstellen.

 

  • Öffnen Sie das Register Mehrschichtige Bauteile im Menü Verwaltung.
  • Erstellen Sie ein neues, mehrschichtiges Bauteil und vergeben Sie den Namen Überzug Keller.
  • Nehmen Sie die Einstellungen gemäss Bild vor:
    • Eine Schicht
    • Baustoff: Unterlagsboden
    • Linien-Stift: 3
    • Typ: Andere
    • Dicke: 0.04
    • Verfügbar für: Decke, Dach, Schale
  • Bestätigen Sie mit OK.

 

Weisen Sie das neu erstellte Bauteil nun der bereits vorgezeichneten Decke zu.

 

  • Aktivieren Sie die Decke und nehmen Sie die Einstellungen im Werkzeug Infofenster gemäss Bild vor.
    • Struktur: Mehrschichtig
    • Mehrschichtiges Bauteil: Überzug Keller

 

Vergleichen Sie das Ergebnis mit dem Bild.

Profilmanager

Der Profilmanager wird angewendet, wenn Sie detaillierte Aufbauten oder Abschlüssen modellieren möchten. Lernen Sie in diesem Kapitel den Profilmanager kennen und wie Sie Profile mit Modifikatoren weiterbearbeiten.

 

Profile können bei folgenden Werkzeugen eingesetzt werden:

  • Wände
  • Stützen
  • Träger
  • Treppe / Geländer
  • Fassade

 

Profil zuweisen

  • Öffnen Sie den Ausschnitt Wandprofil im Ordner Profilmanager / Grundlagen.
  • Aktivieren Sie die Wand und öffnen Sie deren Einstellungen.
  • Nehmen Sie die Einstellungen gemäss Bild vor:
    • Struktur: Profil
    • Profil: Ordner Wände / AD BN 18/15cm (Sockel)
  • Bestätigen Sie mit OK.

 

Die Wand kann dank des Profils, wie hier im Beispiel, nun einen Sockel mit einer anderen Grösse oder einem Mauerfuss-Element haben. Bei einem Profil ist dies frei definierbar - nicht wie bei einem mehrschichtigen Bauteil, welches immer nur durchgehende Schichten hat.

 

  • Öffnen Sie den Ausschnitt Trägerprofil.
  • Aktivieren Sie den Träger und öffnen Sie dessen Einstellungen.
  • Nehmen Sie unter Segment die Einstellungen gemäss Bild vor:
    • Struktur: Profil
    • Profil: Ordner Träger / Träger - WHEA140
  • Bestätigen Sie mit OK.

 

Als Ergebnis sehen Sie, dass auch Träger mit Profilen versehen werden können.

 

Profil erstellen

Erstellen Sie ein eigenes Profil und weisen Sie dieses einer Wand zu.

 

 

  • Öffnen Sie den Ausschnitt eigenes Profil im Ordner eigenes Profil.
  • Öffnen Sie den Profilmanager im Menü Verwaltung / Profil-Manager / Profil-Manager.
  • Aktivieren Sie die Wand und klicken Sie im Profil-Manager auf Aufnehmen.
  • Die Wand wird als Schraffur im Profilmanager angezeigt.
  • Passen Sie die Schraffur der Dämmung auf einen Meter von oben an.
  • Klicken Sie im Profil-Manager auf Sichern.
  • Benennen Sie das Profil mit Kellerwand UG und sichern Sie dieses.
  • Machen Sie einen erneuten Doppelklick auf den Ausschnitt eigenes Profil.
  • Aktivieren Sie die beiden Wände und öffnen Sie die Einstellungen.
  • Weisen Sie den Wänden das neu erstellte Profil zu und prüfen Sie das Ergebnis.

 

 

Tipp:

Über das Menü Verwaltung / Attribute-Palette finden Sie das neu erstellte Profil im Ordner Profil. Mit drag&drop können Sie das Profil in den Ordner Wände verschieben.

Hinweis:

Über das Menü Verwaltung / Profil-Manager / Standard-Stahlprofile importieren können Sie aus einer Datenbank, verschiedene Stahlprofile aus alles Welt in Ihre Datei importieren.

Sie können Profile beliebig mit Schraffuren erstellen und somit detaillierte Wände, Stützen oder Träger erstellen. 

Profil anpassen

Individuelle Kanten bearbeiten

Lernen Sie die weiteren Einstellungen des Profils kennen.

  • Aktivieren Sie eine der beiden Wände und machen Sie einen Rechtsklick.
  • Wählen Sie Ausgewähltes mehrschichtiges Bauteil / Profil bearbeiten, um direkt zum richtigen Profil zu gelangen.
  • Aktivieren Sie die Dämmung und klicken Sie auf die äussere Kante.
  • Wählen Sie den Befehl Individuelle Kanten-Einstellungen in der Pet-Palette.
  • Wählen Sie die Oberfläche Farbe, gelb und prüfen Sie, dass die Änderung nur auf die Angeklickte Kante angewendet wird.
  • Bestätigen Sie mit OK und sichern Sie das Profil.
  • Wechseln Sie in den Ausschnitt eigenes Profil und prüfen Sie das Ergebnis.

 

Sie stellen fest, dass nur die eine Kante überschrieben wurde. Zudem wird die Änderung überall da vorgenommen, wo dieses Profil verwendet wurde.

Modifikatoren

Mit Hilfe der Modifikatoren können bereits platzierte Profile weiterbearbeitet werden. So können zum Beispiel einzelne Schichten angepasst werden. Lernen Sie dies anhand des zuvor gezeichneten Profils.

  • Aktivieren Sie eine der beiden Wände und machen Sie einen Rechtsklick.
  • Wählen Sie Ausgewähltes mehrschichtiges Bauteil / Profil bearbeiten, um wieder zum Profil zu gelangen.
  • Achten Sie darauf, dass die Modifikatoren sichtbar sind.
    • Für den einfacheren Überblick können Sie die Ebenen gemäss Bild ausblenden.
  • Klicken Sie im Kapitel Modifikatoren auf das Symbol , um einen neuen Modifikator zu erstellen.
  • Benennen Sie den Modifikator in 'Dämmung strecken' um.
  • Klicken Sie einmal auf die untere Kante der Dämmung, um zu bestimmen, welchen Teil Sie beweglich machen möchten.
  • Mit dem zweiten Klick bestimmen Sie, von wo die Kante gestreckt wird. Wählen Sie den Eckpunkt oben rechts.
  • Klicken Sie einmal neben die Dämmung, um den Modifikator zu erstellen.
  • Sichern Sie das Profil mit dem neuen Modifikator.

 

Der Modifikator ist nun erstellt. Dieser wird erst wirksam, wenn Sie ein Profil zeichnen. Die platzierten Profile können so individuell nachbearbeitet werden, ohne die Verknüpfung zum Ursprungsprofil zu verlieren.

 

  • Öffnen Sie erneut den Ausschnitt eigenes Profil.
  • Aktivieren Sie eine der Profilwände.
  • Klicken Sie auf die blaue Kante, welche, dank dem zuvor erstellten Modifikator, unterkant der Dämmung neu erscheint.
  • Wählen Sie den Befehl Kante(n) versetzen in der Pet-Palette und verlängern Sie die Dämmung grafisch.

Öffnungsreferenz

Die Öffnungsreferenz im Profil ist wichtig, wenn Sie Fenster in eine Profilwand setzen. Wenn Sie die Öffnungsreferenz ignorieren, kann es sein, dass das Fenster in den verschiedenen Projektsichten an unterschiedlichen Positionen liegt. Schauen Sie dieses Beispiel in den beiden Ausschnitten Öffnungslinie Grundriss und Öffnungslinie Schnitt an. Mit Hilfe der Öffnungsreferenz im Profil kann das Fenster an der richtigen Position gesichert werden.

 

  • Öffnen Sie den Ausschnitt Öffnungslinie Grundriss.
  • Aktivieren Sie die Wand und machen Sie einen Rechtsklick.
  • Wählen Sie Ausgewähltes mehrschichtiges Bauteil / Profil bearbeiten, um direkt zum Profil zu gelangen.
  • Aktivieren Sie die Öffnungsreferenz und machen Sie diese sichtbar.
  • Verschieben Sie die Linien zum Beton, gemäss Bild.
  • Sichern Sie das Profil und wechseln Sie zurück in den Grundriss.
  • Aktivieren Sie das Fenster und stellen Sie den Anschlag auf 0.00.

 

Wenn Sie nun die beiden Ergebnisse prüfen, sehen Sie, dass das Fenster in jeder Projektsicht am selben Ort liegt.

Stützen und Träger

Die Stützen- und Trägerwerkzeuge funktionieren auf ähnliche Weise und können zu komplexeren, zusammenhängenden Geometrien zusammengefasst werden. Aus diesem Grund werden Sie die beiden Werkzeuge simultan kennenlernen und abwechslungsweise eine Stützen-, dann eine Trägerübung machen.

Anwendungsbeispiel Stütze

Mit verjüngten Segmenten können die Abmessungen des Segmentanfangs von denen des Segmentendes abweichen. Modellieren Sie die Pilzkopfstütze aus dem Titelbild nach.

  • Öffnen Sie den Ausschnitt Pilzkopfstütze.
  • Aktivieren Sie die Stütze und öffnen Sie den Einstellungsdialog (Taste T).
  • Im Menü Segment wählen Sie Mehrfach segmentiert.
  • Fügen Sie drei Segmente mit folgenden Längen hinzu:
    1. Fix-Länge: 0.05 m
    2. Fix-Länge: 0.25 m
    3. Fix-Länge: 0.05 m
    4. Flexible Länge: 100%

 

Im Register Struktur definieren Sie für die neuen Segmente folgende Abmessungen:

  • Wählen Sie das erste Segment und definieren Sie die Einstellungen gemäss Bild:
    • Einheitliche Grösse; 0.70 * 0.70 m
  • Wählen Sie das zweite Segment und definieren Sie die Einstellungen gemäss Bild:
    • Verjüngte Grösse; oben: 0.70 * 0.70 m; unten: 0.35 * 0.35 m (Symbol: )
  • Wählen Sie das dritte Segment und definieren Sie die Einstellungen gemäss Bild:
    • Einheitliche Grösse; 0.35 * 0.35 m.

 

Als Resultat haben Sie eine Pilzkopfstütze als ein Element mit mehreren Segmenten modelliert.

Arbeiten mit Favoriten:

Um einen bearbeiteten Träger oder eine bearbeitete Stütze an weitere Elemente zu übergeben, verwenden Sie Favoriten:

  • Öffnen Sie den Ausschnitt Arbeiten mit Favoriten.
  • Aktivieren Sie den ersten (bearbeiteten) Träger und öffnen Sie den Einstellungsdialog (Taste T).
  • Im Menü Träger: Klicken Sie oben links auf das Favoriten-Symbol.
  • Navigieren Sie in den Ordner Träger.
  • Klicken Sie auf Neuer Favorit.
  • Geben Sie dem Favorit einen Namen und bestätigen Sie das Einstellungsfenster mit OK.

 

Favorit zuweisen:

  • Überprüfen Sie, dass die Gruppierung eingeschaltet ist.
  • Aktivieren Sie alle anderen Träger und öffnen Sie den Einstellungsdialog (Taste T).
  • Wählen Sie den zuvor gespeicherten Favoriten mit Doppelklick.
  • Bestätigen Sie mit OK.

 

Folglich sind die Bearbeitungen an alle weiteren Träger übergeben.

Raumstempel

Raumstempel können pro Massstab unterschiedlich eingestellt werden.

  • Öffnen Sie den Ausschnitt Räume 1:100 im Ordner Raumstempel / Eigenschaften Manager.
  • Wechseln Sie anschliessend in den Ausschnitt Räume 1:50.

 

Im Massstab 1:50 werden detailliertere Informationen, wie zum Beispiel die Höhenwerte und Materialisierung angezeigt. Da diese für den Massstab 1:100 nicht relevant waren, werden Sie diese als Erstes bestimmen.

 

Aktuell zeigt die fertige und rohe Höhe denselben Wert an. Der Bodenaufbau ab rohem Boden beträgt 0.24 m:

  • Aktivieren Sie alle fünf Raumstempel und öffnen Sie die Einstellungen (Taste T).
  • Tragen Sie deshalb im Register Name und Positionierung bei Stärke Bodenaufbau den Wert 0.24 ein.
  • Ändern Sie den unteren Abstand zum Ursprungsgeschoss zu -0.24, damit der Raumstempel die Höhenwerte ab OK rohem Boden berechnet.

Weisen Sie als nächstes die Materialien zu:

  • Aktivieren Sie den Raum 01 HOBBYRAUM und öffnen Sie dessen Einstellungen (Taste T).
  • Im Register Klassifizierungen und Eigenschaften finden Sie das Kapitel Materialisierung für die Oberflächen.
  • Klicken Sie beim Material B (Boden) auf die Kette und wählen Sie Individuell (Wert).
  • Klicken Sie rechts auf den Pfeil und wählen Sie das Material Parkett.
  • Wiederholen Sie den Schritt für W (Wand) und D (Decke):
    • W: Rauputz
    • D: Farbe
  • Bestätigen Sie mit OK.

 

Die Materialien passen sich entsprechend an.

  • Wiederholen Sie diese Schritte für die restlichen Räume und wählen Sie die Materialien gemäss Bild unten:

Um die weiteren Auswahlmöglichkeiten für die Raumoberflächen zu erhalten, erweitern Sie die Auswahl im Eigenschaften-Manager. Im nächsten Kapitel lernen Sie diesen genauer kennen.

Eigenschaften Manager

Mit dem Eigenschaften-Manager haben Sie unbegrenzte Möglichkeiten, Ihren Elementen selbst erstellte Eigenschaften zuzuweisen. Lernen Sie in diesem Kapitel, wie man Eigenschaften verwaltet und erstellt.

Überblick

Zeichenfolge individueller Wert, selber definierbar
Optionen-Set Auswahl aus selbst erstellten Werten
Wahr/Falsch Wert kann Wahr oder Falsch sein
Nummer Wert ist immer eine Zahl

Eigenschaft anpassen

Ziel ist es, die Räume mit neuen Eigenschaften anzupassen, welche in der Auswahl aktuell nicht verfügbar sind:

 

  • Öffnen Sie den Eigenschaften-Manager im Menü Verwaltung.
  • Aktivieren Sie auf der linken Seite die Eigenschaft B im Register Materialisierung.
  • Wählen Sie rechts Optionen einstellen, um die Eigenschaft zu erweitern.
  • Klicken Sie auf Hinzufügen und nennen Sie den neuen Wert Anhydrit.
  • Bestätigen Sie beide Fenster mit OK.
  • Aktivieren Sie mit gedrückter SHIFT-Taste die beiden Räume 02 TECHNIK und 04 KELLER und öffnen Sie deren Einstellungen (T).
  • Öffnen Sie das Register Klassifizierung und Eigenschaften.
  • Weisen Sie bei der angepassten Eigenschaft B die neu erstelle Eigenschaft Anhydrit zu.
  • Bestätigen Sie mit OK, damit das neue Material angezeigt wird.

 

Wiederholen Sie die Schritte für einen neuen Wandbelag Verputz:

 

  • Öffnen Sie den Eigenschaften-Manager im Menü Verwaltung.
  • Aktivieren Sie auf der linken Seite die Eigenschaft im Register Materialisierung.
  • Wählen Sie rechts Optionen einstellen, um die Eigenschaft zu erweitern.
  • Klicken Sie auf Hinzufügen und nennen Sie den neuen Wert Verputz.
  • Verschieben Sie den Wert mit Hilfe von den Pfeilen links an die oberste Stelle.
  • Bestätigen Sie beide Fenster mit OK.
  • Aktivieren Sie mit gedrückter SHIFT-Taste die Räume 01 HOBBYRAUM, 03 WASCHKÜCHE und 05 GANG und öffnen Sie deren Einstellungen (T).
  • Öffnen Sie das Register Klassifizierung und Eigenschaften.
  • Weisen Sie bei der angepassten Eigenschaft W die neu erstelle Eigenschaft Verputz zu.
  • Bestätigen Sie mit OK, damit das neue Material angezeigt wird.

 

Eigenschaft anzeigen

Lernen Sie, wie Sie weitere Eigenschaften im Raumstempel anzeigen.

  • Aktivieren Sie die fünf Räume und öffnen Sie deren Einstellungen.
  • Öffnen Sie das Register Einstellungen.
  • Wählen Sie im Dropdown-Menü die Klassifizierung und Eigenschaften.
  • Klicken Sie auf die 4. Zeile und dann auf den kleinen Pfeil rechts.
  • Wählen Sie die Eigenschaft beheizt unter Rauminformationen.
  • Bestätigen Sie mit OK.

 

Die neu hinzugefügte Eigenschaft wird nun in den Räumen angezeigt, jedoch ohne Wert, da dieser noch nicht abgefüllt ist.

 

Dieser Wert wird zu einem späteren Zeitpunkt definiert.

Neue Eigenschaft erstellen

Eigenschaften können nicht nur ergänzt oder bearbeitet, sondern auch komplett neu erstellt werden.

 

  • Öffnen Sie den Ausschnitt neue Eigenschaft.
  • Öffnen Sie den Eigenschaften-Manager über das Menü Verwaltung.
  • Klicken Sie in der linken Spalte auf das Plus bei Anforderungen.
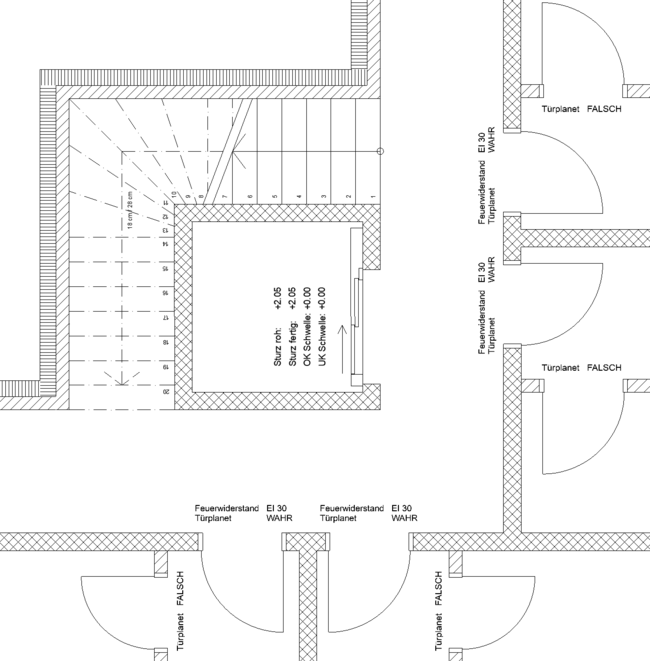
  • Nennen Sie die neue Eigenschaft Türplanet und bestätigen Sie mit OK.
  • Wählen Sie als Datentyp Wahr/Falsch.
  • Verschieben Sie die neue Eigenschaft gemäss Bild.

 

Im Menü Wertedefinition können Sie einen Standardwert definieren, welcher im Element angezeigt werden soll. In den meisten Fällen macht es Sinn, diesen als nicht definiert festzulegen. Denn wenn Sie vergessen eine Eigenschaft abzufüllen, ist es klar, dass diese noch nicht definiert wurde und es werden keine falschen Angaben gemacht.

 

  • Wählen Sie daher den Standardwert Nicht definiert im Menü Wertedefinition.

 

Im Menü Verfügbarkeit für Klassifizierungen entscheiden Sie, für welche Klassifizierungen die Eigenschaft verfügbar sein soll. Wenn Sie die Eigenschaft anschliessend im Element anwenden wollen, erhalten Sie nur Ihre Auswahl der Eigenschaften und haben somit einen besseren Überblick.

 

 

  • Wählen Sie Individuell im Menü Verfügbarkeit für Klassifizierungen und klicken Sie auf Bearbeiten.
  • Schreiben Sie 'Tür' in das Suchfeld und setzen Sie die Haken gemäss Bild:
    • Tür
    • Tür / Tor / Falltür
  • Bestätigen Sie die beiden Fenster mit OK.

 

Die neue Eigenschaft soll nun den Türen hinterlegt werden.

 

  • Aktivieren Sie die vier Wohunungstüren und öffnen Sie deren Einstellungen (T).
  • Im Register Klassifizierungen und Eigenschaften finden Sie Ihre neue Eigenschaft im Kapitel Anforderungen.
  • Klicken Sie bei Türplanet auf die Kette und wählen Sie Individuell (Wert).
  • Klicken Sie rechts auf den Pfeil und wählen Sie Wahr.
  • Bestätigen Sie mit OK.

 

Aktivieren Sie die vier Innentüren in den Backsteinwänden und öffnen Sie deren Einstellungen (T):

  • Wechseln Sie in das Register Klassifizierung und Eigenschaften.
  • Klicken Sie bei Türplanet auf die Kette  und wählen Sie Individuell (Wert), Falsch.

Eigenschaft anzeigen

Sie können die zugewiesene Eigenschaft zum Beispiel über ein Etikett in Ihrem Plan anzeigen lassen.

Vorgehen

  • Aktivieren Sie die vier Etiketten der Wohungstüren und öffnen Sie deren Einstellungen.
  • Gehen Sie zum Register Symboletikett Individuelle Einstellungen.
  • Wählen Sie im Dropdown-Menü Inhalte.
  • Weisen Sie der 2. Zeile die neu erstellte Eigenschaft Türplanet zu.
    • Aktivieren Sie die 2. Zeile und klicken Sie rechts auf den kleinen Pfeil.
    • Wählen Sie die Eigenschaft Türplanet unter Anforderungen.
  • Bestätigen Sie mit OK und prüfen Sie das Ergebnis.

 

Machen Sie dieselbe Einstellungen bei den vier Etiketten der Innentüren:

  • Aktivieren Sie jedoch die 1. Zeile und fügen Sie dort die Eigenschaft Türplanet hinzu.
  • Bestätigen Sie mit OK und prüfen Sie das Ergebnis.

 

Hinweis: Etiketten werden immer gemäss den Einstellungen angepasst.

 

  • Prüfen Sie dies, indem Sie den vier Wohnungstüren ebenfalls unter Klassifizierung und Eigenschaften einen Feuerwiderstandswert zuweisen.

 

 

Grafische Überschreibung

Mit Hilfe der grafischen Überschreibung lernen Sie, Elemente in ArchiCAD, welche gleiche Eigenschaften aufweisen, hervorzuheben. Die grafischen Überschreibungen bieten Ihnen eine nahezu unbegrenzte Möglichkeit an Überschreibungen, da Sie diese selber definieren können.

 

  • Öffnen Sie den Ausschnitt Grafische Überschreibung Raum in Ordner Grafische Überschreibung.

 

Erstellen Sie zuerst eine neue grafische Überschreibungs Kombination:

 

  • Öffnen Sie die grafischen Überschreibungen im Menü Verwaltung / Grafische Überschreibung / Grafische Überschreibungen oder über den Button in den Schnelloptionen.
  • Erstellen Sie eine neue Überschreibung, indem Sie unten links auf Neu klicken.
  • Nennen Sie die Kombination Kontrolle: Raum beheizt und bestätigen Sie mit OK.

 

 

Erstellen Sie nun die zugehörigen Regeln:

  • Klicken Sie auf der rechten Seite auf das mittlere Symbol um eine neue Regel zu erstellen.
  • Nennen Sie die Regel Raum beheizt, wählen Sie die Gruppe Kontrolle und bestätigen Sie mit OK.
  • Aktivieren Sie die neu erstellte Regel und klicken Sie auf das Symbol [...] rechts.
  • Unter Kriterien wählen Sie den Element-Typ ist gleich: Raum.
  • Klicken Sie auf Hinzufügen und schreiben Sie im Suchfeld beheizt, um die Eigenschaft mit einem Doppelklick auszuwählen.
  • Definieren Sie die Eigenschaft auf ist gleich Wahr.
  • Stellen Sie den Überschreibungsstil gemäss Bild rechts ein:
    • Schraffurtyp: Überschreiben / nur Vordergrund-Stift / Deckschaffrur
    • Schraffurvordergrundstift: Überschreiben / Stift: 10 / Deckschraffur
    • Oberfläche: Farbe, rot
  • Erstellen Sie gleich die zweite Regel, indem Sie unten links auf Neu klicken.
  • Wählen Sie Regel duplizieren, benennen Sie die neue Regel Raum nicht beheizt und bestätigen Sie mit OK.
  • Passen Sie die Regel gemäss Bild an.
    • Beheizt ist gleich: Falsch
    • Schraffurvordergrundstift: Stift 83
    • Oberfläche: Farbe, blau
  • Bestätigen Sie mit OK, um die gemachten Einstellungen zu sichern.
  • Fügen Sie die zweite Regel hinzu:
    • Klicken Sie auf das Symbol Hinzufügen  und wählen Sie die Regel Raum nicht beheizt aus.
  • Bestätigen Sie mit OK.

 

Es werden die Farben der Raumkategorien gezeigt. Die Räume werden noch nicht rot und blau überschrieben, da die Eigenschaft beheizt noch nicht definiert wurde.

  • Aktivieren Sie die Räume 04 KELLER, 03 WASCHKÜCHE und 02 TECHNIK.
  • Öffnen Sie deren Einstellungen (T).
  • Stellen Sie die Eigenschaft beheizt im Register Klassifizierung und Eigenschaften auf falsch ein.
  • Als Ergebnis färben sich die Räume aufgrund der grafischen Überschreibung blau.
  • Aktivieren Sie die Räume 01 HOBBYRAUM und 05 GANG.
  • Öffnen Sie deren Einstellungen (T).
  • Stellen Sie die Eigenschaft beheizt im Register Klassifizierung und Eigenschaften auf wahr ein.

Auch diese Räume erfüllen nun die Kriterien der grafischen Überschreibung und werden somit rot überschrieben.

 

  • Prüfen Sie das Ergebnis im 3D-Fenster:
    • Öffnen Sie den Ausschnitt 3D.
    • Wechseln Sie die grafische Überschreibung über die Schnelloptionen auf Kontrolle: Raum beheizt

 

Die Grafischen Überschreibungen reagieren in jeder Projektsicht.

Auswertungen

Mit den Auswertungen haben Sie den Vorteil, Auszüge direkt aus Ihrem 3D-Modell zu lesen. Die Informationen sind immer aktuell und Sie können die Auswertungen beliebig bearbeiten oder neu erstellen.

Felder hinzufügen

Lernen Sie, wie Sie eine neu erstellte Eigenschaft einer Auswertungsliste hinzufügen können:

 

  • Öffnen Sie den Ausschnitt Innentür, Innentor
  • Öffnen Sie die Schema-Einstellungen oben rechts
  • Klicken Sie im Kapitel Felder auf Felder hinzufügen
  • Geben Sie im Suchfeld Türplanet ein
  • Fügen Sie die Eigenschaft Türplanet mit einem Doppelklick hinzu
  • Bestätigen Sie mit OK

 

  • Aktivieren Sie die Spalte Türplanet und wählen Sie links bei Textstil zentriert

 

Sie können die Eigenschaften auch direkt in der Liste anpassen.
Diese werden dann beim Modell automatisch geändert.

Detailliertes Zusammenfassen

Im nächsten Schritt lernen Sie, wie Sie zusammengefasste Elemente einer Auswertung präziser kontrollieren können:

 

  • Setzen Sie den Haken bei Gleiche Elemente zusammenfassen.

 

 

Durch diesen Haken werden alle Türen, welche identische Kriterien aufweisen, zusammengefasst.

Ziel ist es, dass die Türen trotz unterschiedlicher Ausrichtung zusammengefasst werden, auch wenn die Bandung gespiegelt ist:

 

  • Klicken Sie in der Überschrift der Auswertung auf die Spalte Ausrichtung
  • Klicken Sie nun auf den kleinen Einstellungsbutton, welcher rechts vom Text erscheint
  • Nehmen Sie die Einstellungen gemäss Bild vor:
    • Wählen Sie: Alle Werte
    • Wählen Sie: Liste der Werte
    • Trennzeichen: /
    • Setzen Sie den Haken bei Anzahl in Klammern anhängen
  • Bestätigen Sie mit OK und prüfen Sie das Ergebnis

 

Die Ausrichtung hat nun keinen Einfluss mehr auf das Zusammenfassen der Elemente. Die Ausrichtung wird mit dem zuvor definierten Trennzeichen und der jeweiligen Anzahl in derselben Zeile dargestellt.

 

 

Formatierung

Als nächstes lernen Sie die Formatierung einer Auswertung genauer kennen.

 

  • Öffnen Sie den Ausschnitt Raumliste.

 

 

Sie sehen unteranderem die zuvor eingestellten Räume. Aktuell ist die Auswertung noch nicht übersichtlich.

 

  • Setzen Sie links den Haken Überschrift. Damit die erste Spalte mit dem Ursprungsgeschoss als Überschrift angezeigt wird.
  • Öffnen Sie oben rechts die Schema-Einstellungen.
  • Setzen Sie bei Berechnete Fläche (NRF) und Volumen (netto) das Summen-Zeichen .
  • Bestätigen Sie mit OK und prüfen Sie das Ergebnis.

 

Öffnen Sie erneut die Schema-Einstellungen.

  • Setzen Sie das Flaggen-Symbol bei Ursprungsgeschoss, damit es Ihnen die Zwischensummenzellen, sowie die Summenzellen anzeigt.

 

Hinweis: Das Flaggen-Symbol kann maximal bei einem Feld gesetzt werden.

Kriterien hinzufügen

Das nächste Ziel ist, nur die Räume vom Untergeschoss auszuwerten.

 

  • Öffnen Sie die Schema-Einstellungen.
  • Klicken Sie im Kapitel Kriterien auf Kriterien hinzufügen.
  • Geben Sie im Suchfeld Ursprungsgeschoss ein.
  • Wählen Sie das Kriterium Ursprungsgeschoss mit einem Doppelklick aus.
  • Klicken Sie rechts auf den kleinen Pfeil und wählen Sie -1 UG.
  • Bestätigen Sie mit OK um das Ergebnis zu überprüfen.

 

Kriterien

Bestimmen, welche Elemente in der Liste aufgeführt werden sollen.

Felder

Bestimmen die Werte, welche aus den Elementen gelesen werden.

 

Treppe

Lernen Sie in diesem Abschnitt mehr über die Wendelung, die Struktur sowie Bekleidung und die Grundrissdarstellung der Treppe.

Treppe mit Wendelung

Eine Treppe mit einer Wendelung muss immer eines der folgenden Kriterien erfüllen, damit diese erstellt werden kann:
 

  • Die Treppe muss immer die gleichen Auftritte haben.
  • Die Treppe muss immer die gleichen Winkel haben.

 

 

Im nächsten Beispiel werden Sie die verschiedenen Wendelungsoptionen aufzeichnen.

  • Öffnen Sie den Ausschnitt Wendelung mit gleichen Winkeln / Auftritten.
  • Machen Sie einen Doppelklick auf das Treppenwerkzeug, um die Grundeinstellungen zu öffnen.
  • Wählen Sie im linken Menü die Treppe.
  • Klicken Sie oben auf die Favoriten .
  • Machen Sie einen Doppelklick auf den Treppenfavoriten Wendelung gleiche Winkel.
  • Sehen Sie sich die Einstellungen an, vor allem die Einstellung Wendeltreppe mit gleichen Winkeln ist hier wichtig.
  • Bestätigen Sie mit OK.
  • Zeichnen Sie die Treppe mit Hilfe der linken Fixpunkte gemäss Bild auf.
  • Machen Sie erneut einen Doppelklick auf das Treppenwerkzeug, um die Grundeinstellungen zu öffnen.
  • Wählen Sie im linken Menü die Treppe.
  • Klicken Sie oben auf die Favoriten .
  • Machen Sie einen Doppelklick auf den Treppenfavoriten Wendelung gleiche Auftritte.
  • Sehen Sie sich die Einstellungen an, vor allem die Einstellung Wendeltreppe mit gleichen Auftritten ist hier wichtig.
  • Bestätigen Sie mit OK.
  • Zeichnen Sie die Treppe mit Hilfe der rechten Fixpunkte gemäss Bild auf.
  • Öffnen Sie nun den Ausschnitt Unterschied.

 

Hier wird veranschaulicht, wie die Treppe berechnet wird. Beachten Sie, dass die Treppe mit der Wendelung immer eine dieser Regel einhalten muss, ansonsten kann die Treppe mit dem Treppenwerkzeug nicht konstruiert werden.

Struktur

Bei einer bereits platzierten Treppe können trotzdem weitere Einstellungen vorgenommen werden. Tipp: Die Treppe wird auch an einer Referenzlinie "aufgehängt" und nach unten extrudiert. Das bedeutet, dass die Stärke der Treppe, Treppenbelags-Einstellungen oder Vor- und Rücksprünge bei den Treppenanschlüssen keinerlei Auswirkungen auf das Trittverhältnis, die Treppenlänge und -höhe haben.

  • Öffnen Sie den Ausschnitt Treppenstruktur. Sie sehen eine Holmtreppe im Schnitt.
  • Aktivieren Sie die Treppe und öffnen Sie den Einstellungsdialog (Taste T).
  • Wählen Sie im Menü links Struktur und schalten Sie für Treppenlauf und Podest auf Massiv um.

 

  • Wählen Sie das Untermenü Lauf - Massiv / Treppenlauf Einstellungen und erhöhen Sie die Treppenstärke auf 0.20.
  • Im Register Massive Komponenten-Einstellungen wählen Sie den Konturlinien-Stift 5. 
  • Weisen Sie den Baustoff Beton, Stahlbeton zu.
  • Bestätigen Sie mit OK. Die Treppendarstellung ändert sich.

Auflager und Verbindungen:

  • Öffnen Sie die Einstellungen der gesetzten Treppe erneut.
  • Wählen Sie links Lauf - Massiv und gehen Sie ins Register Auflager und Verbindungen. Hier können Sie die Anschlüsse an die Treppe steuern.
  • Mit dem blauen Kreis definieren Sie den Bearbeitungsort. Wählen Sie den Treppenlauf-Beginn.
  • Wählen Sie Vertikale Verbindung und geben Sie folgende Werte ein:
    • dy: 0.10
    • dx2: 0.50
  • Bestätigen Sie mit OK und betrachten Sie das Resultat.

Für die Verbindung oben:

  • Treppenlauf-Ende: Horizontale Verbindung
  • Werte:
    • dx: 0.00
    • dy1: 0.04
    • dy2: 0.31

Treppe und Unterlagsboden verschneiden:

  • Aktivieren Sie den Unterlagsboden.
  • In der Symbolleiste wählen Sie das Menü Verbinden / Solid Element-Befehle. Der Unterlagsboden ist als Zielelement gespeichert (1).
  • Aktivieren Sie nur die Treppe, klicken Sie auf Operatorelemente übernehmen (2).
  • Wählen Sie die Operation Abzug (3).
  • Klicken Sie auf Ausführen (4).

Treppenbelag

Der Belag wird separat von der Tragstruktur eingestellt:

  • Öffnen Sie den Ausschnitt Treppenbelag.
  • Aktivieren Sie die Treppe und öffnen Sie den Einstellungsdialog (Taste T).
  • Im Menü links wählen Sie Bekleidung.
  • Wählen Sie Tritt- und Setzstufe.
  • Öffnen Sie das Untermenü Trittstufe.
  • Prüfen Sie, dass die Integrierte Trittstufe gewählt ist.
  • Stufendicke: 0.02
  • Baustoff: Holz, Konstruktion
  • Oberfläche überschreiben, Parkett Eiche hell
  • Öffnen Sie das Untermenü Setzstufe.
  • Prüfen Sie, dass die Integrierte Setzstufe gewählt ist.
  • Setzstufendicke: 0.01
  • Baustoff: Holz, Konstruktion
  • Oberfläche überschreiben, Parkett Eiche hell
  • Bestätigen Sie mit OK und vergleichen Sie mit dem Bild unten.

Den Luftraum im Austritt korrigieren Sie unter Lauf - Massiv / Auflager und Verbindungen.

  • Treppenlauf-Ende:
    • dy1: 0.02
    • dy2: 0.33

Grundrissdarstellung

Bei der Treppe haben Sie verschiedene Darstellungsmöglichkeiten für den Grundriss. Erfahren Sie in diesem Abschnitt mehr dazu.

 

  • Schauen Sie sich als Überblick den Ausschnitt Treppenhaus im Ordner Treppe an.

Nummerierung

Passen Sie die Nummerierung wie folgt an.

 

  • Öffnen Sie den Ausschnitt Grundriss EG.
  • Aktivieren Sie beide Treppen und öffnen Sie deren Einstellungen.
  • Öffnen Sie das Kapitel Nummerierung Komponenten-Einstellungen.
  • Setzen Sie den Haken bei Über relevantem Geschoss zeigen.
  • Bestätigen Sie mit OK

 

Sie können sehen, dass die Nummerierung ersichtlich ist, diese muss jedoch noch angepasst werden. 

 

  • Aktivieren Sie die UG Treppe und klicken Sie auf den Button .
  • Wählen Sie oben links Symbol.
  • Klicken Sie auf den mittleren roten Diamantpunkt der Zahl 9 und verschieben Sie diese gemäss Bild.
  • Beenden Sie den Bearbeitungsmodus, indem Sie auf ESC drücken.

 

Hinweis: Die Nummerierung kann über diesen Weg nicht nur verschoben, sondern auch gedreht werden. Verwenden Sie dazu den roten Diamantpunkt links von der Zahl.

Bruchsymbol

Im nächsten Schritt wird die Darstellung des Bruchsymbols beim Antritt und die Treppenaufsicht im Obergeschoss angepasst.

  • Öffnen Sie den Ausschnitt Grundriss OG.
  • Aktivieren Sie die Treppe und öffnen Sie die Einstellungen (T).
  • Öffnen Sie die Grundrissdarstellung und nehmen Sie die Einstellungen gemäss Bild vor:
    • Über relevantem Geschoss (1. OG): Über Bruchsymbol: Sichtbar
  • Bestätigen Sie mit OK.
  • Aktivieren Sie die Treppe und öffnen Sie den Bearbeitungsmodus mit .
  • Wechseln Sie oben links auf Symbol.
  • Aktivieren Sie das Bruchsymbol am unteren rechten roten Diamantpunkt und drehen Sie das Bruchsymbol gemäss Bild auf .
    • Klicken Sie zuerst auf das Antrittsymbol beim Beginn der Lauflinie, damit Sie die die roten Diamantpunkte sehen können.
  • Kontrollieren Sie, dass oben links das Umfeld eingeblendet ist.
  • Aktivieren Sie den mittleren linken roten Diamantpunkt und verschieben Sie das Bruchsymbol.
    • Fahren Sie mit der Maus auf die vom Umfeld sichtbaren Kante des Bodens, ohne zu klicken.
    • Drücken Sie x, 0.1, - und bestätigen Sie mit Enter.
  • Beenden Sie den Bearbeitungsmodus mit Esc und prüfen Sie das Ergebnis.

 

Zu guter Letzt können Sie noch das Antrittsymbol am Bruchsymbol ausblenden.

 

  • Öffnen Sie den Ausschnitt EG.
  • Aktivieren Sie beide Treppen und öffnen Sie deren Einstellungen (T).
  • Öffnen Sie das Register Lauflinie Komponenten-Einstellung im Menü Lauflinie.
  • Wechseln Sie im Dropdown Menü auf Antrittsymbol.
  • Setzen Sie den Haken bei Antrittsymbol an Bruchsymbol ausblenden.
  • Bestätigen Sie mit OK.
  • Vergleichen Sie das Ergebnis mit den Bildern unten.

 

An- / Austrittsymbol

  • Öffnen Sie den Ausschnitt Grundriss EG.
  • Aktivieren Sie beide Treppen und öffnen Sie deren Einstellungen.
  • Navigieren Sie im Kapitel Lauflinie zum Register Lauflinie Komponenten-Einstellungen.
  • Wählen Sie im Dropdown Menü das Austrittsymbol.
  • Setzen Sie den Haken bei Endet an vorletzter Stufe.
  • Bestätigen Sie mit OK.

 

  • Aktivieren Sie nur die obere Treppe und öffnen Sie deren Einstellung.
  • Navigieren Sie im Kapitel Lauflinie zum Register Lauflinie Komponenten-Einstellungen.
  • Wählen Sie im Dropdown Menü das Antrittsymbol.
  • Setzen Sie den Haken bei Beginnend mit zweiter Stufe.
  • Bestätigen Sie mit OK.

Stufen und Struktur

Nehmen Sie die letzte grafische Darstellung der Treppe vor, um den unsichtbaren Teil der Treppe gestrichelt zu zeigen.

 

  • Aktivieren Sie beide Treppen und öffnen Sie deren Einstellungen.
  • Navigieren Sie im Kapitel Stufen und Struktur zum Register Struktur-Komponenteneinstellungen.

In diesem Register können Sie die verschiedensten Linientypen steuern. Oben finden Sie die Linientypen für den sichtbaren Teil (Aufsicht) und unten für den verdeckten Teil (Untersicht).

 

Die Verbindung der Treppe soll nicht als Volllinie, sondern gestrichelt dargestellt werden.

  • Passen Sie folgenden Linientyp gemäss Bild an:
    • Sichtbarer Teil / Massiv - Verbindung Detail Linientyp: Strich 2/1mm
  • Bestätigen Sie mit OK.
  • Vergleichen Sie Ihr Ergebnis.

Geländer

Im folgenden Kapitel lernen Sie, wie Sie auf den Grundlagen eines Standard-Favoriten ein eigenes Geländer erstellen und weiterbearbeiten können.

Tipp: Auch wenn die Geländer an einem durchgehenden Stück modelliert werden könnten. Grundsatz: Modellieren Sie in ArchiCAD so, wie auch gebaut wird.

 

Geländer-Einstellungen auf Grundlage eines Favoriten

Im ersten Schritt erstellen Sie das Geländer entlang der Betonbrüstung mit einem Standard-Favoriten:

  • Öffnen Sie den Ausschnitt Geländer erstellen im Ordner Geländer.
  • Öffnen Sie mit Doppelklick die Geländer Grundeinstellungen.
  • Wählen Sie den Favoriten Metall mit Holzhandlauf mit Doppelklick.
  • Bestätigen Sie das Fenster mit OK.

 

Modellieren Sie das Geländer:

  • Starten Sie beim linken Fixpunkt und setzen Sie das Geländer beim rechten Fixpunkt mit einem Doppelklick ab.
  • Betrachten Sie das platzierte Geländer im nächsten Ausschnitt Geländer 3D.

Fixierung

Die Befestigung des Geländers kann bei den Pfosten und Innenpfosten definiert werden.

  • Aktivieren Sie das Geländer im 3D-Fenster und öffnen Sie die Einstellungen (T):
  • Im Menü Innenpfosten / Untermenü Innenpfosten Komponenten-Einstellungen:
    • Wechseln Sie ins Menü Fixierung
    • Setzen Sie den Haken bei Fixierung
    • Wählen Sie den Fixierungstyp Unterseite

 

Dieselbe Einstellung benötigt es im Menü Pfosten:

  • Untermenü Pfosten Komponenten-Einstellungen / Fixierung
    • Haken setzen bei Fixierung
    • Fixierungstyp: Unterseite
  • Bestätigen Sie mit OK.

Segment

Als nächstes soll das Segment-Muster bestimmt werden:

  • Aktivieren Sie das Geländer und öffnen Sie den Einstellungsdialog (Taste T).
  • Im Menü Segment / Untermenü Segment Muster-Einstellungen
    • Wählen Sie das zweite Symbol Feste Musterlänge

 

Die feste Musterlänge wird durch die Position des Innenpfostens bestimmt:

  • Öffnen Sie die Geländer-Einstellungen / Menü Innenpfosten
    • Abstand: 2.0
    • Bestätigen Sie mit OK

Geländerstäbe

Das Muster der Geländerstäbe enthält in der Regel zwei Sets, welche individuell eingestellt werden können:

  • Öffnen Sie die Geländer-Einstellungen erneut und wechseln Sie ins Menü Geländerstäbe
  • Überprüfen Sie in der Vorschau, dass das erste Geländerstab-Set aktiv ist
  • Im Untermenü Geländerstäbe Komponenten-Einstellungen wählen Sie das Dropdown-Menü Stil und Abmessung
    • Pfostenform: Rechteck ausgefüllt
  • Wechseln Sie ins Dropdown-Menü 3D-Darstellung
    • Setzen Sie den Haken bei Pfosten-Oberfläche überschreiben
    • Wählen Sie Farbe weiss
    • Bestätigen Sie mit OK um das Ergebnis zu überprüfen

 

  • Öffnen Sie die Geländer-Einstellungen
  • Aktivieren Sie in der Vorschau das erste Geländerstab-Set
  • Löschen Sie dieses über das  Symbol oben rechts

 

Der Abstand zwischen den Geländerstäben ist nun zu gross:

  • Menü Geländerstäbe / Untermenü Geländerstab Muster-Einstellungen
  • Prüfen Sie, dass bei Stabmuster-Verteilung und Position Muster gleichmässig verteilen gewählt wurde und bestimmen Sie eine maximale Länge von 0.12
  • Bestätigen Sie mit OK.

 

Der Abstand zwischen den Geländerstäben wird nun automatisch berechnet und überschreitet die Länge von 0.12m nicht.

 

 

Handlauf

Öffnen Sie die Geländer-Einstellungen um Änderungen am Handlauf vorzunehmen:

  • Menü 1. Handlauf
  • Untermenü 1. Handlauf Komponenten-Einstellungen / Dropdown-Menü Stil und Abmessung
    • Gurtform: Rechteck ausgefüllt
    • Höhe / Breite: 0.04 / 0.04
    • Baustoff: Metall, Stahl
  • Dropdown-Menü 3D-Darstellung
    • Haken bei Gurt-Oberfläche überschreiben entfernen
    • Bestätigen Sie mit OK

Enden

Die Enden des Handlaufs laufen über das Geländer hinaus. Diese Verlängerung der Enden, soll in den Geländer-Einstellungen gekürzt werden:

  • Menü Knoten / Enden
    • Verlängerung: 0.02
    • Bestätigen Sie mit OK und prüfen Sie das Ergebnis

 

Paneel

Als nächstes werden Sie beim bestehenden Geländer die Geländerstäbe durch ein Paneel ersetzen.
Dazu müssen in unserem Fall vorgängig die Geländerstäbe und der Gurt gelöscht werden:

  • Öffnen Sie die Geländer-Einstellungen / Menü Geländerstäbe
    • Geländerstäbe in der Vorschau aktivieren und über das  Symbol löschen
    • Gurt in der Vorschau aktivieren und über das  Symbol löschen
  • Wechseln Sie in das Menü Paneele und klicken Sie oben rechts auf das  Symbol
    • Klicken Sie mit dem Stift in das erste Segment hinein, unterhalb des Handlaufs

 

  • Das Paneel wurde platziert. Bestätigen Sie mit OK um das Ergebnis zu sehen

Grundrissdarstellung

Die Grundrissdarstellung sowie auch die Einstellungsmöglichkeiten sind ähnlich wie die der Treppe.

Grundriss-Symbol anpassen:

Optimieren Sie die Grundriss-Darstellung und ersetzen Sie das runde Standardsymbol für die Geländerpfosten:

  • Öffnen Sie den Ausschnitt Geländer erstellen
  • Aktivieren Sie das Geländer und öffnen Sie die Einstellungen
  • Menü Knoten / Pfosten
  • Untermenü Pfosten Komponenten-Einstellungen / Dropdown-Menü 2D-Darstellung
  • Wählen Sie für das Pfosten-Grundrisssymbol den Typ 4
  • Bestätigen Sie mit OK

Der Detaillierungsgrad wird von der Modelldarstellung gesteuert. Möchten Sie das Paneel oder weitere Geländerbestandteile im Grundriss auch darstellen, gehen Sie wie folgt vor:

  • Gehen Sie ins Menü Verwaltung / Modelldarstellung / Modelldarstellung erstellen
  • Prüfen Sie, dass die aktuelle Modelldarstellung 05 Druck/Plott Realisierung aktiv ist
  • Im Menü Geländer-Optionen setzen Sie die Haken bei
    • Innenpfosten
    • Paneele
  • Bestätigen Sie mit OK

Geländer im Bearbeiten-Modus

In der nächsten Übung erfahren Sie, wie Sie einzelne Bestandteile des Geländers im Detail bearbeiten können:

  • Öffnen Sie dazu den Ausschnitt Kellertreppe 3D

Geländer-Enden:

In den Geländer-Enden passen Sie immer mehrere Elemente an. Im Fall der Enden zwei:

  • Aktivieren Sie das Geländer und öffnen Sie die Einstellungen
  • Wählen Sie das Menü Knoten / Enden
  • Oben wählen Sie: Gurt
  • Wechseln Sie unter Geneigtes Geländer auf die Option: Horizontal und geben Sie den Abstand ein: 0.55
  • Bestätigen Sie mit OK, werden die Enden oben und unten angepasst

 

Dies ist nicht das gewünschte Resultat. Fahren Sie fort...

Subelement-Anpassungen

Mit dem Bearbeiten-Modus können Subelemente des Geländers bearbeitet werden.

Optimierung der Enden:

Im Bearbeiten-Modus optimieren Sie das Geländer:

  • Aktivieren Sie das Geländer und klicken Sie auf den blauen Button Bearbeiten.
  • Nun können Sie die Elemente des Geländers einzeln aktivieren und einstellen.
  • Aktivieren Sie das obere Gurt-Ende und gehen Sie die Einstellungen mit Taste T.
  • Wechseln Sie unter Geneigtes Geländer zurück auf Tangential zum Segment.
  • Bestätigen Sie mit OK.
  • Bleiben Sie im Bearbeiten-Modus.

 

Optimieren Sie den Abschluss unten:

  • Zoomen Sie auf den Geländer-Anfang.
  • Aktivieren Sie den ersten Geländerpfosten.
  • Packen Sie das untere Ende und ziehen Sie es auf dieselbe Höhe, welche die Geländerstäbe haben. Am unteren Ende der Geländerstäbe haben Sie hierzu Fangpunkte.
  • Öffnen Sie dann sogleich die Einstellung des Pfostens (Taste T).
  • Im Menü Pfosten Komponenten-Einstellungen / Stil und Abmessungen wählen Sie für das Untere Ende: Horizontal.
  • Bestätigen Sie mit OK.

Für den ersten Innenpfosten sind dieselben Einstellungen vorzunehmen. Jedoch hängen die Innenpfosten (noch) zusammen:

  • Aktivieren Sie den (bzw. die) Innenpfosten.
  • Machen Sie einen Rechtsklick und wählen Sie Muster in Segmentlänge umwandeln, um die Elemente einzeln zu bearbeiten.
  • Aktivieren Sie den Innenpfosten erneut und wiederholen Sie die Einstellungen, welche Sie für den ersten Pfosten gemacht haben:
    • Höhe unten grafisch anpassen
    • Unteres Ende: Horizontal
  • Vergleiche Bild.

 

Hinweis: In den Einstellungen des Geländers sehen Sie ein kleines, gelbes Symbol mit einem Ausrufezeichen. Dies weist darauf hin, dass für das aktive Geländer individuelle Einstellungen vorliegen, die im Bearbeiten-Modus gemacht wurden.

Aussparungen

Das Öffnungs-Werkzeug unterstützt Sie, um in BIM-Planungen innerhalb der Disziplinen (z. B. Architektur, HLK, Tragwerksplanung) Öffnungen zu planen und auszutauschen. Nutzen Sie die Öffnungen auch, um in ArchiCAD leere Öffnungen, Durchbrüche oder Nischen zu modellieren.

 

Mit dem Öffnungs-Werkzeug erstellte Aussparungen werden unterschieden in:

  • Durchbruch / Aussparung = Komplettdurchdringung
  • Nische = Teildurchdringung

 

Lernen Sie nachfolgend die Funktionen des Öffnungswerkzeuges kennen:

 

 

Öffnungen erstellen

  • Doppelklicken Sie den Ausschnitt Öffnungen platzieren.
  • Öffnen Sie das Öffnungswerkzeug und stellen Sie es wie folgt ein:
    • Form Rechteck wählen
    • Abmessungen 1.00 x 1.00 m einstellen
    • Button Keine Begrenzung wählen, um einen Komplettdurchbruch zu erzeugen.
    • Mit OK bestätigen.
  • Mit je einem Klick auf Wand und Decke eine Öffnung platzieren.
     

Öffnungen durch mehrere Elemente

Beispiel 1

  • Doppelklicken Sie den Ausschnitt Beispiel 1 im Ordner Öffnung durch mehrere Elemente.
  • Aktivieren Sie die Öffnung.
  • Gehen Sie ins Menü Optionen / Bildschirmdarstellungsoptionen / Öffnung, Schneidekörper. 
  • Klicken Sie auf das kleine blaue Verbindungs-Symbol und fügen jeweils via Plus-Button die obere und untere Decke durch Anklicken hinzu, so dass die Öffnung auch in diesen Geschossen sichtbar wird.
  • Klicken Sie anschliessend eine Öffnungskante an und wählen Sie aus der Petpalette den Befehl Kante versetzen. Vergrössern Sie die Öffnung.
  • Im Ergebnis sehen Sie, dass sich die Öffnung in allen drei Geschossen vergrössert hat.

Beispiel 2

  • Doppelklicken Sie den Ausschnitt Beispiel 2 im Ordner Öffnung durch mehrere Elemente.
  • Aktivieren Sie die drei Leitungen.
  • Wählen Sie im Menü Ändern / Verbinden den Befehl Öffnungen aus Auswahl erstellen…
  • Tragen Sie als Versatz den Wert 0.02 m ein.
  • Aktivieren Sie die Option Nahe Öffnungen verschmelzen und tragen als Abstandswert 0.60 m ein.
  • Auf Öffnungen erstellen klicken.
  • Obwohl bei dieser Methode eigentlich einzelne Öffnungen pro Durchdringung erstellt werden, ist im Ergebnis dank der Verschmelzung pro Leitung nur eine einzige Öffnung erstellt worden. Dies können Sie gut nachvollziehen und kontrollieren, indem Sie eine Öffnung aktivieren.

 

Tipp: Dasselbe können Sie mit Öffnungen machen, welche in derselben Wand seitlich miteinander verschmolzen werden sollen.

Detailwerkzeug

Bei der Detailplanung passiert der Schritt in die 2D-Planung. Lernen Sie, wie Ihnen das Detailwerkzeug dabei behilflich ist.

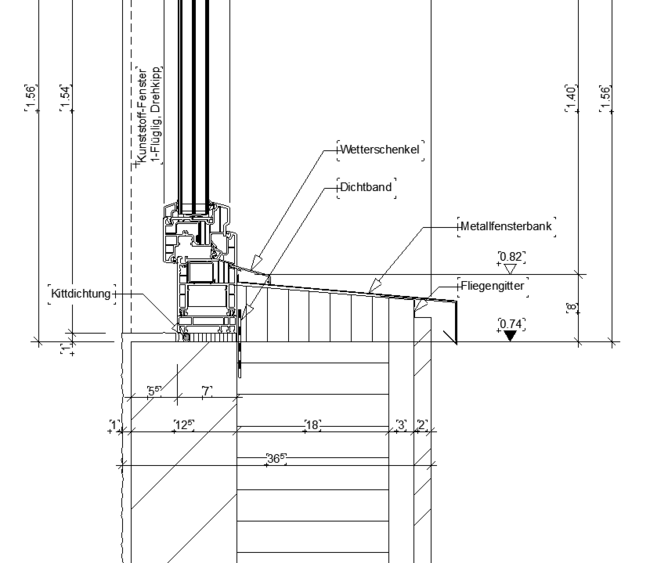
  • Öffnen Sie den Ausschnitt Fensterdetail im Ordner Detailwerkzeug.
  • Machen Sie einen Doppelklick auf das Detailwerkzeug und nehmen Sie die Einstellungen gemäss Bild vor:
    • Referenz-ID: D/02
    • Name: Fenster
    • Stiftgrösse: 1.50
  • Zeichnen Sie mit zwei Klicks einen Rahmen um die Fensterbrüstung gemäss Bild.
  • Klicken Sie einmal rechts vom Rahmen, um den Text zu platzieren und den Befehl abzuschliessen.
  • Aktivieren Sie das neu erstellte Detail und machen Sie einen Rechtsklick darauf.
  • Wählen Sie Mit den aktuellen Anzeigeeinstellungen öffnen, um das Detail zu öffnen.

 

Da es ab einem Punkt keinen Sinn mehr macht alles 3D zu modellieren, ist das Detail nun direkt in 2D-Elemente zerlegt. Dieses kann detailliert ausgearbeitet werden. Auf das Modell und den Schnitt haben die Arbeiten im Detail keinen Einfluss mehr.

 

 

Wenn Sie jedoch im Navigator einen Rechtsklick auf Ihr Detail machen, können Sie dieses Anhand des Ursprung-Ausschnitts neu aufbauen.
Das Detail wird wieder original hergestellt.

Neu gezeichnete 2D-Ergänzungen bleiben bestehend, Anpassungen an der Originalzeichnung werden zurückgesetzt.


Tipp: Kopieren Sie Ihr komplettes Detail und fügen Sie es daneben ein, damit Sie bei Anpassungen im 3D-Modell das Detail anhand des Ursprung-Ausschnitts neu aufbauen können, ohne dass es Ihnen die Anpassungen im Detail zurücksetzt.

  • Arbeiten Sie das Detail gemäss Massstab 1:5 aus:

Tipp: Im Navigator in der Projektmappe, finden Sie unter Details das D/01 Fensterdetail als Vorlage.

Verknüpfter Marker

Wenn Sie mehrere, identische Details haben, können Sie verknüpfte Marker platzieren, um auf das gleiche Detail zu verweisen.

 

  • Öffnen Sie den Ausschnitt Verknüpfter Marker.
  • Achten Sie darauf, dass Sie das zuvor gezeichnete Detail nicht mehr aktiviert haben (ESC).
  • Machen Sie erneut einen Doppelklick auf das Detailwerkzeug.
  • Wählen Sie den verknüpften Marker.
  • Aktivieren Sie das zuvor erstellte Detail D/02 Fensterdetail.
  • Bestätigen Sie beide Fenster mit OK und ziehen Sie das Detail um die Fensterbrüstung.
  • Aktivieren Sie das Detail und machen Sie einen Rechtsklick darauf.
  • Wählen Sie Mit aktuellen Anzeigeeinstellungen öffnen.

 

 

Sie stellen fest, dass Sie wieder auf dasselbe Detail verwiesen werden.

Hinweis: Wenn Sie verknüpfte Marker platziert haben und sich nicht mehr sicher sind, welches der Quell-Marker ist, können Sie über das Menü Optionen / Bildschirmdarstellungs-Optionen den Quellmarker hervorheben.

Optional

Beschriftungsboxen (swissTools)

Mit dem swissTool Beschriftungsboxen können Sie schnell und einfach strukturierte Beschriftungsblöcke für die Aufbauten erstellen und diese mehrfach in Ihren Plänen verwenden.

Neue Beschriftungsbox erstellen

  • Öffnen Sie über das Menü swissTools / Dokumentation die Beschriftungs-Palette.
  • Klicken Sie auf den ersten Button, um die Beschriftungsblöcke-Einstellungen zu öffnen.

 

Erstellen Sie eine neue Beschriftungsbox für den Wandaufbau:

  • Unten links können Sie auf das  Symbol klicken und die Nummer sowie den Namen bestimmen:
    • Nummer: 02
    • Name: Wandaufbau
  • Rechts können Sie ebenfalls auf das  Symbol klicken und die einzelnen Schichten definieren:
    • Holzverkleidung / 2 / cm
    • Hinterlüftung / 3 / cm
    • Dämmung / 18 / cm
    • Backstein / 12.5 / cm
    • Innenputz / 1 / cm

 

Tipp: Aktivieren Sie bei Backstein den Haken für eine hochgestellte Dezimale.

 

  • Bestätigen Sie die Beschriftungsblöcke-Einstellungen mit OK.

Beschriftungsbox platzieren

  • Öffnen Sie über die Beschriftungs-Palette, mit einem Klick auf das dritte Symbol, die Beschriftungsbox-Einstellungen.

 

In diesen Einstellungen können Sie die Darstellung der Beschriftungsboxen definieren.

 

  • Kontrollieren Sie, ob die Ebene 160 Beschriftungen Ausführung zugewiesen ist und bestätigen Sie mit OK.
  • Wählen Sie im Dropdown-Menü in der Beschriftungs-Paltte den Wandaufbau aus.
  • Klicken Sie auf das zweite Symbol, um die Beschriftungsbox im Plan mit einem weiteren Klick zu platzieren.

 

Beschriftungsbox bearbeiten

Im Schnitt wurde die Beschriftungsbox 01 Bodenaufbau zweimal im Plan platziert.
Nun hat sich der Bodenbelag von Parkett zu Platten geändert und die Information muss in der Beschriftungsbox ebenfalls noch angepasst werden.

 

Ein Vorteil der Beschriftungsboxen ist, dass nicht jede platzierte Beschriftungsbox manuell geändert werden muss, sondern diese global über die Beschriftungsblöcke-Einstellungen angepasst werden können:

 

  • Öffnen Sie über das erste Symbol die Beschriftungsblöcke-Einstellungen.
  • Wählen Sie links den Bodenaufbau EG / OG.
  • Ändern Sie rechts Parkett zu Platten.
  • Bestätigen Sie mit OK und prüfen Sie das Ergebnis.

 

Beide Beschriftungsboxen der Bodenaufbauten haben sich angepasst.