IDC AG Zentralschweiz (Hauptsitz)
Kägiswilerstrasse 29
6060 Sarnen
IDC-Hotline: 0900 980 980 (3.13/Min.)
Kostenlose Spezialnummer für KEYMEMBER
IDC Training gültig für:
Mac
,
Win
AC27
Dat. 08.01.2024 | Übungsdauer: 180 min | ID-Nr. 3478
Übungsdauer: 180 min
ID-Nr: 3478

ArchiCAD kennenlernen

Einleitung

Schnupperkurs für CAD Ein- und Umsteiger

Projektvorstellung

Grundrisse

Schnitt

Visualisierung

ArchiCAD Arbeitsplatz

Menüleiste
Liste der verschiedenen Menüs

 

Tableiste
In Tabs organisierte, geöffnete Projektsichten

 

Werkzeuginfofenster
Kurzüberblick über das im Moment ausgewählte Konstruktionselement

 

Werkzeugkasten
Liste der Werkzeuge:

  • Doppelklicken: Werkzeugeinstellungen
  • Klick auf Pfeil: Zeigt zugehörige Favoriten an

 

Koordinatenfenster
Zeigt die genaue Position des Cursors, X-,Y- und Z- Koordinaten, den Radius und den Winkel

 

Kontrollfenster
Zeichenhilfen für die tägliche Arbeit

 

Navigator
Zeigt den Projektinhalt an

Das Deckenwerkzeug

Fundamentplatte

Mit dem Deckenwerkzeug werden Sie die quadratische Fundamentplatte zeichnen.

Vorgehen

  • Deckenwerkzeug im Werkzeugkasten doppelklicken.
  • Im Deckenwerkzeug folgende Einstellungen kontrollieren:
    • Deckenstärke: 0.30 m
    • Baustoff: Allgemein, Konstruktion
    • Oberflächen: Parkett Eiche hell, Verputz, glatt, weiss und Verputz, Decke, weiss
  • Geometriemethode Rechteck in Werkzeuginfo auswählen.
  • Cursor auf den Nullpunkt setzen (Cursor wird zu einem Haken). Einmal klicken, Rechteck diagonal aufziehen und Maus loslassen.
  • Auf der Tastatur X-Taste drücken und den Wert 7.00 eingeben, Y-Taste drücken und ebenfalls den Wert 7.00 eingeben. Mit Enter bestätigen.
  • Zur Kontrolle kann der Cursor auf die obere rechte Ecke bewegt werden (Haken). Im Koordinatenfenster sollten die Werte 7.00 / 7.00 stehen.
  • Doppelklicken Sie im Navigator auf Allgemeine Axonometrie und betrachten Sie die Decke im 3D-Fenster.

Das 3D-Fenster

Navigation im 3D-Fenster

Im 3D-Fenster können Sie das Modell beliebig drehen und von allen Seiten betrachten.

Vorgehen

  • Wählen Sie den Orbit an. Klicken Sie und halten Sie die Maustaste gedrückt. Sie können das Modell nach rechts, links, oben oder unten bewegen und so von allen Seiten betrachten.

 

Tipp:
Mit der ESC-Taste verlassen Sie den 3D Bewegungsmodus (Orbit).
Nun ist der 3D-Bearbeitungsmodus automatisch aktiv.

Widerrufen / Abbrechen, Aktivieren und Löschen

Widerrufen / Abbrechen

Falls etwas nicht Ihren Vorstellungen entspricht, können Sie jederzeit Arbeitsschritte Widerrufen bzw. Wiederausführen...

 

Im Menü Bearbeiten können Sie Arbeitsschritte widerrufen und wiederausführen.

 

Um ein Konstruktions-Vorgang abzubrechen, verwenden Sie die ESC-Taste.

Aktivieren und Löschen

Wenn Sie Elemente bearbeiten möchten, müssen Sie diese zuerst aktivieren. Das Aktivieren kann z.B. mit dem Pfeilwerkzeug durchgeführt werden.


Vorgehen:

  1. Pfeilwerkzeug einmal anklicken.
  2. Element (z.B. Decke) an einer Kante, Ecke oder Fläche anklicken. Es erscheinen Aktivierungspunkte. Nun kann das Element bearbeitet oder gelöscht werden (Delete-Taste).

Navigation, Zoom und Massstab

In der Navigationsleiste können Sie zoomen, den Bildschirm optimieren und den Massstab einstellen...

 

Vorgehen:

  1. Mit der Lupe oder durch Drehen des Mausrads vergrössern bzw. verkleinern.
  2. Optimieren (max. Bildschirmdarstellung; Taste 0).


Anmerkung:

In ArchiCAD arbeiten Sie mit realen Dimensionen, d. h. 1m = 1m. Der Massstab ist für den Ausdruck und gewisse Darstellungen relevant. Für diese Aufgabe können Sie den Massstab auf 1:100 eingestellt lassen.

Das Wandwerkzeug

Aussenwände

Zeichnen Sie die Aussenwände des Gebäudes direkt im 3D-Fenster.

Vorgehen

  • Wandwerkzeug doppelklicken
  • Wandeinstellungen:
    • Wandoberkante verknüpft mit 1. OG
    • Struktur: Standard
    • Baustoff: Allgemein, Konstruktion
    • Wanddicke:   0.30
    • Referenzlinie: Aussen
    • Oberflächen: Holz Schalung, natur, liegend und Verputz, glatt, weiss (Verkettung darf nicht aktiv sein)
      Hinweis: Sie können bei der Oberfläche die Suchfunktion nutzen
  • Mit OK bestätigen
  • Wählen Sie im Kontrollfenster den Zauberstab  aus. Als Alternative können Sie mit der gedrückten Leertaste den Zauberstab aufrufen
  • Klicken Sie mit dem Zauberstabcursor auf die Decke, so dass 4 Wände erstellt werden

Innenwände

Als nächstes werden Sie eine Innenwand zeichnen. Stellen Sie zunächst das Wandwerkzeug neu ein...

Vorgehen

  • Wandwerkzeug doppelklicken
  • Wandeinstellungen wie abgebildet vornehmen:
    • Wandoberkante: Verknüpft mit 1. OG
    • Struktur: Standard
    • Baustoff: Allgemein, Konstruktion
    • Wanddicke :  0.20
    • Referenzlinie: Aussen
    • Oberflächen:   Beton, Sichtbeton Löcher
      (Tipp: mit Klammer Materialien zusammenfassen)
    • Ebeneneinstellung:   015 Innenwände
  • OK-Button

 

Anmerkung:
Ebenen sind CAD-spezifische Organisationsmöglichkeiten für alle Elemente. Ebenen können bei Bedarf ausgeblendet und / oder geschützt werden.

  • Geometriemethode im Werkzeuginfofenster auf Einfache Wand einstellen

    Anmerkung:

    Maustaste auf Geometriemethode gedrückt halten, dann erscheinen zusätzliche Möglichkeiten.
  • Cursor auf den Nullpunkt setzen. Wenn Haken erscheint, Maus loslassen (nicht klicken)
  • Anfangspunkt der Innenwand mit der Eingabe über die Tastatur bestimmen:
    • X: 1.90 / Y: 4.50
  • Enter-Taste
  • Länge der Innenwand bestimmen: Maus nach rechts ziehen (Hilfslinie) und den Wert 3.20 eingeben, mit Enter bestätigen
  • Gehen Sie ins 3D-Tab zur Kontrolle

Das Fensterwerkzeug

Gehen Sie zurück ins 2D, indem Sie in der Tab-Leiste auf 0. EG klicken. Nach einem Doppelklick auf das Fensterwerkzeug können Sie einen Fenstertyp aus der ArchiCAD-Bibliothek wählen und die Parameter individuell einstellen...

Vorgehen

  • Fensterwerkzeug doppelklicken
  • Ordner Rechteckfenster auswählen
  • Fenstertyp: 1-Flügelfenster
  • Dimensionen:
    • Fensterbreite:   2.00
    • Fensterhöhe:   2.35
    • Anker: Sturz zu Geschoss 0:   2.40
    • Ankerpunkt: Seite 2
    • Register Fenster Einstellungen:
      • Öffnungstyp und Winkel: Festverglast
  • OK-Button
  • Auf obere rechte Gebäudeinnenecke (Kreuzungspunkt erscheint, das Sonnensymbol muss aussen liegen) klicken.
  • Sonne mit Öffnungsrichtungspfeilen escheinen, Maus nach unten links bewegen (Öffnungspfeil blau) und durch Klicken haben Sie das Fenster platziert.
  • Kontrolle im 3D-Fenster.

Das Eckfensterwerkzeug

Eckfenstereinstellungen

Nach einem Doppelklick auf das Eckfensterwerkzeug können Sie einen Fenstertyp aus der ArchiCAD-Bibliothek wählen und die Parameter individuell einstellen...

Vorgehen

  • Eckfensterwerkzeug doppelklicken
  • Ordner Rechteckfenster auswählen
  • Fenstertyp: 1-Flügelfenster
  • Dimensionen:
    • Fensterbreite:   1.00
    • Fensterhöhe:   2.35
    • Anker: Sturz zu Geschoss 0:   2.40
    • Ankerpunkt: Mitte
    • Fenstereinstellungen:
      • Öffnungstyp und Winkel: Festverglast
  • OK-Button

Eckfenster einsetzen

Sie können nun im 3D-Fenster das ausgewählte und eingestellte Fenster in die Wand einsetzen.

Vorgehen

In der gewünschten Ecknähe auf die Wand klicken. Für Anschlagsrichtung (blauer Pfeil) mit dem Cursor in die Innenseite (links oder rechts) fahren. Mit Klick wird das Eckfenster platziert.

 

Anmerkung:
Fenster können in ArchiCAD nur in Kombination mit einer Wand verwendet werden. Sie liegen immer auch auf derselben Ebene wie die Wand.

Längenänderung des Fensters im Grundriss vornehmen


Vorgehen

  • Pfeilwerkzeug auswählen und im Grundriss auf das Fenster klicken, um es zu aktivieren.
  • Rechte untere Fensterecke anklicken. Aus der Petpalette Knotenpunkt verschieben auswählen und auf die Wandmitte klicken (Haken erscheint).
  • Kontrolle im 3D-Fenster.

Das Türwerkzeug

Türeinstellungen

Nach einem Doppelklick auf das Türwerkzeug können Sie eine Türe aus der ArchiCAD Bibliothek wählen und individuell einstellen...

Vorgehen

  • Türwerkzeug doppelklicken
  • Ordner:   Eingangstüren
  • Türtyp:   Eingangstür 01 1-FI
  • Vorschau und Positionierung:
    • Türbreite:   1.00
    • Türhöhe:   2.40
    • Anker: Brüstung/Schwelle zu Geschoss 0
    • Brüstungshöhe:   0.00
    • Ankerpunkt:   Seite 2
  • Mit der Pfeiltaste bis zum Register Modelleigenschaften gehen
  • Türblatt: Farbe blau
  • OK-Button

Türe einsetzen

Sie können nun die ausgewählte und eingestellte Türe in die Wand einsetzen. Türen können gleich wie Fenster nur in Kombination mit einer Wand verwendet werden.

Vorgehen

  • Cursor auf obere linke Gebäudeaussenecke legen (nicht klicken)
  • Abstandsmass über Tastatur eingeben: X-Taste 0.40 und mit Enter bestätigen.
  • Sonne mit Öffnungsrichtungspfeilen erscheinen, Maus nach unten bewegen (Öffnungspfeil blau) und durch Klicken haben Sie die Türe platziert.

Das Treppen- und Geländerwerkzeug

Treppeneinstellungen

ArchiCAD bietet ein integriertes Treppenwerkzeug. Mit diesem lassen sich diverse Treppentypen und Treppeneinstellungen einfach definieren. Für dieses Projekt verwenden Sie eine vordefinierte Standardtreppe, welche mit individuellen Parametern optimal eingestellt wird.

Vorgehen

  • Treppenwerkzeug doppelklicken.
  • Oben links die Favoriten wählen, dann Kragarm eingespannt doppelklicken.

Geometrie-Einstellungen:

  • Verknüpfen Sie die Treppe mit dem Geschoss darüber.
  • Geben Sie die Laufbreite ein: 0.80
  • Geben Sie die Stufenanzahl ein: 15
  • Wählen Sie Abschluss mit Setzstufe.
  • Prüfen Sie, dass die Auftrittstiefe Flexibel ist und definieren Sie dann die Regeln:
    • Steigung min. 0.15 und max. 0.20
    • Auftritt min. 0.21 und max. 0.24
    • 2S+A min. 0.60 und max. 0.65

Treppenkörper:

  • Gehen Sie auf Lauf - Kragarm ins Register Kragarm Komponenten-Einstellungen / Masse und geben Sie die Werte gemäss Screenshot ein.
  • Wählen Sie den Baustoff Holz.
  • Im Register Einspannung verkleinern Sie den Bereich auf 15cm.
  • Bestätigen Sie mit OK.

Geländerwerkzeug

Um das Geländer automatisch mit der Treppe zu verknüpfen:

  • Öffnen Sie die Geländer-Einstellungen.
  • Wählen Sie den Favorit reiner Handlauf.
  • Wählen Sie dann im Menü Segment / 2. Handlauf, dass der Handlauf an der linken Seite montiert werden soll.

Treppenwerkzeug

  • Wählen Sie wieder das Treppen-Werkzeug und aktivieren Sie im Infofenster das Geländer an der linken Seite.
  • Zeichnen Sie die Treppe im Grundriss an der Wand auf. Definieren Sie den Startpunkt links und setzen Sie die Treppe rechts mit einem Klick auf dem Wandende ab.

Das Markierungsrahmenwerkzeug

Teilbereiche im 3D-Fenster anzeigen lassen...

Mit dem Markierungsrahmenwerkzeug können Sie die Bauteile im 3D-Fenster eingrenzen.

 

Tipp:
Durch Drücken der ESC-Taste lässt sich der Rahmen im Grundriss wieder löschen.

Vorgehen

  • Markierungsrahmenwerkzeug anklicken
  • Markierungsrahmen im Grundriss wie nebenan abgebildet aufziehen
  • Anschliessend ins 3D-Fenster wechseln: Menü 3D / Auswahl/Markierungsrahmen in 3D anzeigen (Ctrl / Cmd+3) auswählen

Tipp:
Damit Sie wieder alle Elemente im 3D-Fenster anzeigen lassen können, wählen Sie Menü 3D / Alle anzeigen (SHIFT + 4).

Arbeitsmethodik

Bauteile kopieren

Da das Erdgeschoss grösstenteils dem Aufbau im Obergeschoss entspricht, ist es sinnvoll, die Bauteile aus dem EG ins OG zu kopieren...

Hinweis:

In der Demoversion funktioniert dieser Befehl nicht. Sie können mit Hilfe der Transparentpause das Geschoss neu zeichnen.

Vorgehen

  • Wechseln Sie wieder in das Erdgeschoss, indem Sie in der Tableiste auf 0. EG klicken.
  • Wandwerkzeug auswählen (1x anklicken)
  • Menü Bearbeiten / Alle Wände aktivieren

    Tipp:
    Diese Funktion bezieht sich immer auf das ausgewählte Werkzeug, d.h. wenn Sie alle Fenster aktivieren möchten, wechseln Sie auf das Fensterwerkzeug. Anschliessend steht im Menü Bearbeiten / Alle Fenster aktivieren.
     
  • Menü Bearbeiten / Kopieren
  • Anschliessend in das OG wechseln...

    Tipp:
    Falls Ihnen für den Geschosswechsel der Weg über den Navigator zu umständlich ist, können Sie für jeden Befehl auch ein Tastatur-kürzel verwenden:
    • Ein Geschoss höher:   Ctrl  + 6
    • Ein Geschoss tiefer:   Ctrl + 5

      Für Mac OS: Ctrl = Cmd-Taste
  • Menü Bearbeiten / Einsetzen
  • Die aus der Zwischenablage eingesetzten Elemente werden zunächst in einem Markierungsrahmen dargestellt. Sie hätten nun noch die Möglichkeit, die eingesetzten Elemente zu verschieben. ArchiCAD setzt die Elemente immer am Original-Standort ein, dies ist normalerweise auch sinnvoll. Wenn Sie das Einsetzen bestätigen möchten, reicht ein Mausklick ausserhalb des Markierungsrahmens.
  • Kontrolle im 3D-Fenster.

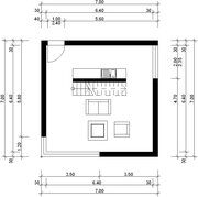
Bodenplatte Obergeschoss

Decke über EG

Momentan fehlt noch die Bodenplatte OG bzw. die Decke über dem EG. Sie werden diese nun neu zeichnen und dabei die Treppenaussparung berücksichtigen....

Vorgehen

  • Deckenwerkzeug aktivieren (1x anklicken)
  • Im Infofenster die Geometriemethode Rechteck auswählen
  • Zwei sich gegenüberliegende Gebäudeinnenecken anklicken, um eine neue Decke zu erstellen
    (siehe Abbildung rechts; 3.1, 3.2)
  • Die soeben erstellte Decke aktivieren, indem Sie bei gedrückter SHIFT-Taste 1x auf die Decke klicken (Aktivierungspunkte erscheinen)
  • Zwei gegenüberliegende Eckpunkte der Treppe anklicken (5.1, 5.2) um eine Deckenaussparung vorzunehmen
  • ESC-Taste drücken, um die Aktivierung wieder aufzuheben
  • Kontrolle im 3D-Fenster (Allgemeine Axonometrie).

Tipp:
Falls Sie im 3D-Fenster noch immer den Markierungsrahmenbereich angezeigt bekommen, wählen Sie im Menü 3D den Befehl Alle anzeigen.

Anpassungen Obergeschoss

Fenster bearbeiten

Im Obergeschoss müssen noch einige Anpassungsaufgaben vorgenommen werden. Zunächst werden Sie die Fenster bearbeiten.

Vorgehen

  • Pfeilwerkzeug wählen
  • Im 3D-Fenster das Eckfenster durch Anklicken aktivieren
  • Auf einen der unteren inneren Aktivierungpunkte klicken und aus der Petpalette Vertikal strecken auswählen
  • Die Höhe im Eingabetracker auf 1.00 stellen und mit Enter bestätigen.
  • Eingangstüre aktivieren und löschen (DEL-Taste)
  • Im OG-Grundriss bei gedrückter ALT-Taste (Pipette) auf einen Eckpunkt des Ostfensters klicken und somit die Werkzeugeinstellungen übernehmen
    • Im Infofenster den Ankerpunkt kontrollieren (Seite 2)
    • Breite auf 1.00 ändern
  • Cursor auf obere linke Aussenecke legen und über die Tastatur X 0.40 Enter eingeben. Öffnungsrichtung angeben und mit Klick das Fenster platzieren.

Innenwände und Türen im Obergeschoss

Sie werden im Obergeschoss die bestehende Innenwand verlängern, eine neue Wand zeichnen sowie zwei Innentüren einsetzen.

Vorgehen Innenwände

  • Bestehende Innenwand mit Pfeilwerkzeug aktivieren
  • Befehl Anpassen in Symbolleiste anklicken (Alternative: Menü Ändern / Anpassen)
  • Auf Aussenkante der Ostaussenwand klicken.
  • Die beiden oberen Schritte für die Anpassung an Westwand wiederholen und Wand deaktivieren mit ESC-Taste.
  • Wandwerkzeug aktivieren und im Infofenster auf Konstruktionsmethode zentriert umstellen.
  • Wand wie abgebildet mit zwei Mausklicks zeichnen (in der Mitte der Wände existieren Fangpunkte)

Vorgehen Innentüren

  • Türwerkzeug doppelklicken und wie folgt einstellen:
    • Ordner:   4.02 Innentüren
    • Türtyp:   Blockfutter
    • Ankerpunkt:   Seite 1
    • Türbreite:   0.87 m
    • Türhöhe:    2.035 m
  • Cursor auf Schnittpunkt (innen) von West- und Innenwand legen (nicht klicken!)
  • Türen in der Innenwand platzieren gemäss Abbildung oben:
    • 1. Türe:  X 0.10  ENTER-Taste
    • 2.Türe:  X 5.43  ENTER-Taste

Das Schnittwerkzeug

Schnitte und Ansichten

Da das Projekt dreidimensional aufgebaut wurde, können Sie jederzeit an einem beliebigen Ort einen Schnitt definieren.

Informationen:
Der Schnitt ist mit dem 3D-Modell verbunden, d.h. wenn ein Bauteil verändert wird, sind auch die Schnitte und Ansichten nachgeführt. Für gewisse Aufgaben ist es sinnvoll, Anpassungen direkt im Schnitt durchzuführen. Umgekehrt wird dann der Grundriss automatisch aktualisiert.
Beachten Sie, dass Ansichten ebenfalls mit dem Ansichtwerkzeug erstellt werden. Sie können u. a. bei der Modelldarstellung Oberfächenfarbe, Schlagschatten, etc. einschalten um plastischere Darstellungen zu erhalten.

Vorgehen

  • Schnittwerkzeug doppelklicken und folgende Einstellungen kontrollieren:
    • Referenz-ID:   S/01
    • Bezeichnung:   Schnitt
  • Im Grundriss mit zwei Mausklicks eine horizontale Schnittlinie durch die Treppe legen
  • Das Auge gibt die Blickrichtung des Schnittes an: 1x unterhalb der Schnittlinie klicken
  • Im Navigator unter Schnitte doppelklicken Sie auf den S/01 Schnitt. Der neue Schnitt öffnet sich...

Tipp:
Selbstverständlich können Sie im Schnitt noch plangrafische Ergänzungen vornehmen, z. B. eine Terrainlinie, Schraffuren, Masse, Menschen, etc. hinzufügen.

 

Das Flachdach (optional)

Dachgeschoss erstellen

Sie werden nun ein weiteres Geschoss (DG) anlegen und ein Flachdach erstellen.

Vorgehen

  • Gehen Sie in den Grundriss (Tab öffnen).
  • Menü Verwaltung / Geschosse / Geschosseinstellungen
  • OG auswählen und auf Darüber einfügen klicken
  • Das neue Geschoss AUFSICHT nennen und die Geschosshöhe auf 1.00 festlegen
  • Im neuen Geschoss die Transparentpause einblenden (Menü Optionen / Transparentpause) und Unter dem aktuellen Geschoss als Transparentpause definieren.
  • Mit der Geometriemethode Rechteck vier Aussenwände zeichnen (Einstellungen im Wandwerkzeug wie nebenan abgebildet!)
  • Mit dem Deckenwerkzeug das Flachdach erstellen. Verwenden Sie die Geometriemethode Rechteck und klicken Sie zwei gegenüberliegende Wandinnenecken an.
  • Deckeneinstellungen:
    • Deckenstärke:   0.30
    • Abstand zu Ursprungsgeschoss:   0.00
    • Modell (Oberfläche oben):   Natur, Dachbegrünung
  • In der Tableiste auf den Schnitt S/01 klicken. Der Schnitt ist bereits angepasst...

Das Objektwerkzeug

Bibliothekselemente

Mit dem Objektwerkzeug haben Sie Zugang zu Hunderten von Bibliothekselementen. Für Ihr Projekt nutzen Sie einige Möbel aus der ArchiCAD-Bibliothek.

Vorgehen

  • Gehen Sie ins Erdgeschoss
  • Doppelklicken Sie das Objektwerkzeug und wählen Sie aus dem Ordner 1.Objekte / 1.09 Möbelierung nach eigenem Ermessen Möbel aus, um den Wohnbereich einzurichten.
  • Die Einfrontenküche beispielsweise kann mit dem Element Konzeptküche aus dem Ordner 1.07 Küche erstellt werden.
  • Schalten Sie auf den Typ Gerade um und aktivieren/deaktivieren Sie Hochschränke und Zubehör nach Bedarf.
  • Über den mittleren, roten Hotspot können die Elemente an den korrekten Ort verschoben werden. 

Tipp:
Mit dem Pfeilwerkzeug können Sie z.B. an einer Ecke Objekte aktivieren. Vom zentralen Aktivierungspunkt aus lassen sich die meisten Objekte auch sehr einfach verschieben. Kontrollieren Sie den Wohnbereich mit einer Perspektive. Setzen Sie eine Kamera im Innenraum ein (Vorgehen siehe nächste Seite).

Das Kamerawerkzeug

Perspektiven in ArchiCAD

Mit dem Kamerawerkzeug können präzise Perspektiven definiert werden. Ein wesentlicher Aspekt in der Visualisierung ist die Wahl eines geeigneten Standortes...

Vorgehen:

  • Kamerawerkzeug im Werkzeugkasten einmal anklicken
  • Mit der Maus (wie nebenan abgebildet) von oben rechts nach unten links im Wohnbereich eine Kamera zeichnen
    Anmerkung:

    Erster Klick ist der Kamera-Standort, zweiter Klick definiert die Blickrichtung
  • Mit dem Pfeilwerkzeug Kamera aktivieren und mit Rechtsklick Auswahl/Markierungsrahmen in 3D anzeigen, damit die ausgewählte Kamera für das 3D-Fenster relevant ist

Perspektiven mit Markierungsrahmen

Mit dem Markierungsrahmenwerkzeug (siehe Seite 15) können Sie auch für Perspektiven Bauteile im 3D-Fenster eingrenzen. Setzen Sie einfach im Grundriss einen Markierungsrahmen und öffnen anschliessend mit Rechtsklick Auswahl/Markierungsrahmen in 3D anzeigen das 3D-Fenster. Beachten Sie den Unterschied im Infofenster zwischen dem dünnen (=geschossweisen) und dem dicken (=geschossübergreifenden) Markierungsrahmen.
 

Tipps:

  • Bei aktivierter Kamera lässt sich mit einem Doppelklick auf das Kamerawerkzeug die Perspektive individuell einstellen. Zum Beispiel den Blickwinkel auf 90° erhöhen.
  • Wenn Sie den Ausschnitt im 3D-Fenster verschieben (mit SHIFT+Klick), kann die neue Perspektive auf die Kamera übertragen werden. Machen Sie im Navigator einen Rechtsklick auf die Kamera und wählen Sie Aktuelle Einstellungen für Kamera übernehmen.
  • Die Position wird im Grundriss folglich ebenfalls korrigiert.

Perspektivische Darstellung im Tab 3D

Visualisierung

Oberflächen und Photorealistik

ArchiCAD bietet Ihnen interessante Visualisierungsmöglichkeiten, um Ihre architektonischen Ideen der Bauherrschaft zu kommunizieren...

 

Information:

Sie können direkt im 3D-Fenster mit den Elementen arbeiten. Im Menü 3D blenden Sie den Oberflächenkatalog ein, mit welchem Sie einfach Materialien von Objekten im 3D-Fenster überschreiben können.

  • Wählen Sie ein Material im Oberflächenkatalog aus und klicken Sie dann folgend mit dem Pinsel auf den gewünschten Bereich eines Elements.

Darstellung Photorealistik

In der Photorealistik werden die Materialien mit Texturen dargestellt und geben einen Eindruck, wie der Innenraum aussehen könnte. Drücken Sie F12, um ein Bild der aktuellen Ansicht zu erzeugen. Hinweis: Je nach verwendeter Szene und Rendering-Einstellung schaut das Ergebnis anders aus.

 

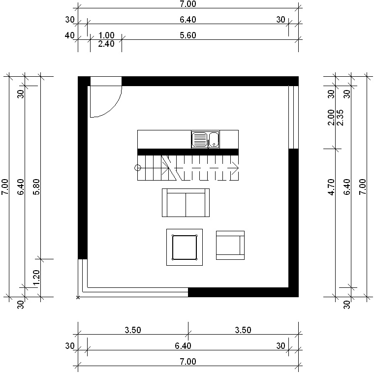
Das Bemassungswerkzeug

Grundriss bemassen

Eine wichtige Planinformation ist die Bemassung der Bauteile. ArchiCAD bietet für diese Aufgabe ein spezielles Werkzeug, das Bemassungswerkzeug.

Information:
Sie können mit dem Bemassungswerkzeug Bauteile entweder manuell bemassen indem Sie die zu bemassenden Punkte anklicken oder (wie in diesem Beispiel gezeigt) vorgängig die zu bemassenden Bauteile aktivieren und dann mit der automatischen Bemassung arbeiten.

Vorgehen

  • Öffnen Sie den Grundrissplan (über das Tab)
  • Wandwerkzeug aktivieren
  • Menü Bearbeiten / Alle Wände aktivieren
  • Menü Extras / Automatische Bemassung / Aussenbemassung
  • Wählen Sie im Dialogfenster die Optionen Objektendpunkte und Bemassungen auf vier Seiten platzieren und bestätigen Sie mit OK.
  • Im Grundriss geben Sie die Ausrichtung der Masslinien an:
    Klicken Sie - wenn der Mercedes-Cursor erscheint - auf die untere Aussenwand
  • Es erscheint der Hammer-Cursor. Platzieren Sie die innerste Masskette mit dem Hammer am gewünschten Ort.

Wichtig:
Die Bemassung ist intelligent, d.h. wenn sich Bauteile verändern, wird die Bemassung sofort nachgeführt. Alle Pläne sind jederzeit auf dem neuesten Projektstand!

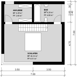
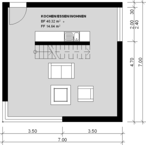
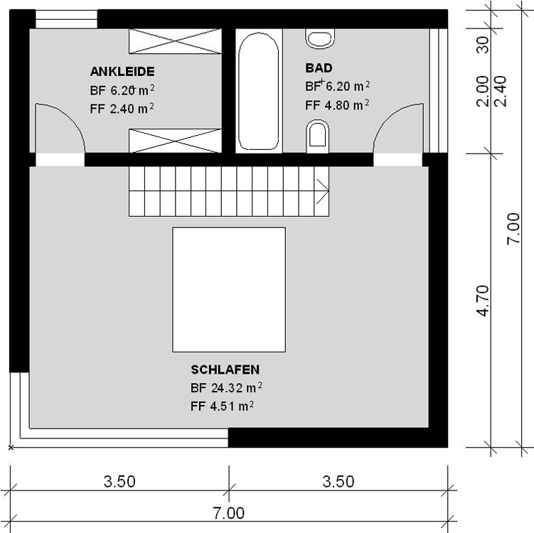
Das Raumflächenwerkzeug

Das Raumflächenwerkzeug ermöglicht Räume nach SIA 416 zu beschriften und später auszuwerten.

Vorgehen

  • Raumflächenwerkzeug wie nebenan abgebildet einstellen:
    • Raumname:   Kochen/Essen/Wohnen
    • Raumoberkante: Verknüpft mit 1. OG -0.30
    • Methode:   Automatisch
  • Im Erdgeschoss 1x in den Wohnbereich klicken (ArchiCAD greift automatisch die Raumumrisse ab)
  • Mit dem Hammer-Cursor die Raumbeschriftung platzieren
  • Obergeschoss (wie nebenstehend abgebildet) mit Raumstempeln versehen

Das Berechnungsmenü

Beispiel Fensterlisten

Neben den plangrafischen Möglichkeiten, verfügt ArchiCAD über ein umfassendes Berechnungsmenü. Hier lassen sich jederzeit Element- und Flächenlisten erzeugen.

Information:
Alle wichtigen Elementinformationen sind in ArchiCAD abrufbar. Im Berechnungsmenü können diese Listen auch individuell eingestellt werden.

Layout

In diesem Schritt werden Sie noch mit wenigen Klicks eine Dokumentation Ihrer gezeichneten Pläne erstellen und diese als PDF speichern.

Vorgehen:

Damit Sie später die Dokumentation als PDF ausgeben können, werden Sie zuerst Ihre gezeichneten Pläne layouten. Das Layout ist soweit vorbereitet, dass Sie nur noch Ihre Zeichnungen aus der Ausschnittmappe darauf platzieren müssen. Gehen Sie dafür folgendermassen vor:

  • Wechseln Sie im Navigator mit Klick auf das entsprechende Symbol in das Layoutbuch.
  • Öffnen Sie hier mit Doppelklick das Layout 1.1 Dokumentation A4 im Ordner 1 Layout. Folglich sehen Sie ein vorbereitetes A4-Blatt, welches auch schon mit Titeln versehen ist.
  • Wechseln Sie im Navigator auf das Symbol Ausschnittmappe.
  • Öffnen Sie den Ordner Layout. Markieren Sie da die beiden Unterelemente Geschosse & Schnitte und ziehen Sie diese mit drag&drop auf Ihr Layout (Elemente mit der Maustaste "packen", rüberziehen über das A4-Layout und da wieder "loslassen")

 

Hinweis: Sie haben die Möglichkeit im Navigator die Suchfunktion zu verwenden.

Als Resultat erstellt Ihnen ArchiCAD mehrere Layouts für Ihre Dokumentation und verteilt die Zeichnungen darauf. Erfahren Sie im nächsten Schritt, wie Sie diese als PDF ausgeben können.

Publisher

Im nächsten Schritt werden wir über den Publisher die PDF-Dokumentation exportieren.

PDF-Ausgabe:

Um die PDF-Dokumentation zu speichern, müssen Sie erst den Speicherpfad im Publisher definieren.

  • Klicken Sie im Navigator auf das Publisher-Symbol.
  • Mit Klick auf den kleinen Pfeil gelangen Sie eine Ebene höher, in die Übersicht der Sets.
  • Hier wählen Sie das Publisher-Set 01 PDF-Export und klicken anschliessend auf Einstellungen.
  • Es öffnet sich ein separates Fenster, in welchem Sie auf Suchen / zum lokalen Dateisystem klicken.
  • Wählen Sie im Dialogfenster einen Speicherort an, z.B. Desktop.
  • Bestätigen Sie beide Fenster mit OK.
  • Öffnen Sie das Publisherset 01 PDF-Export mit einem Doppelklick.
  • Markieren Sie den Ordner 1 Layout.
  • Mit Klick auf das kleine Symbol unten rechts und anschliessender Wahl der Option Ausgewählte Elemente reduzieren Sie den Export auf den markierten Ordner.
  • Setzen Sie den Haken: In einer PDF-Datei zusammenführen.
  • Klicken Sie anschliessend auf Publizieren.
  • Das Dokumentationsfenster können Sie folglich schliessen.
  • Überprüfen Sie nun das PDF auf Ihrem Rechner.
  • Tipp: Mit einem Rechtsklick auf die Datei, können Sie diese direkt im Explorer/Finder anzeigen.

BIMx

Über den Publisher können nicht nur PDF-Dokumentationen exportiert werden, sondern auch viele weitere Dateiformate wie zum Beispiel ein BIMx.

 

BIMx ist ein innovatives Präsentationstool, das Ihnen auf der Grundlage der Hyper-Model-Technologie eine integrierte 2D- und 3D-Navigation durch Ihr Gebäudemodell ermöglicht.

BIMx Export

Ein BIMx Hypermodell besteht aus einem 3D-Modell sowie PDF-Plänen. 

Wichtig ist, dass Sie alle gewünschten Elemente im Publisherset ergänzen bevor Sie das Modell ausgeben.

 

Ein BIMx-Modell kann am Desktop, auf mobilen Endgeräten wie auch im Browser betrachtet werden.

  • Gehen Sie in die Publisherset-Übersicht.
  • Öffnen Sie die Einstellungen des Sets 09 BIMx Export. Prüfen Sie folgende Einstellungen:
    • Ausgabe: Dateien sichern / Einzeldatei erstellen
    • Pfad: Desktop/Schreibtisch
    • Format: BIMx Hyper-Modell
  • Bestätigen Sie mit OK.

Öffnen Sie das Publisher-Set 09 BIMx Export mit Doppelklick.

 

Für ein BIMx benötigt es mindestens einen 3D-Ausschnitt.

 

Im Publisher-Set befindet sich bereits der 3D-Ausschnitt Perspektive und der Ordner Layout mit der PDF-Dokumentation.

  • Wählen Sie mit einem Klick auf das kleine Symbol nebenan von Publizieren die Option Komplettes Set.
  • Klicken Sie anschliessend auf Publizieren.

 

Das BIMx wird berechnet. Die Berechnung dauert wenige Minuten.

Kontrollieren Sie nach dem Export das BIMx-Modell:

  • Navigieren Sie im Dateimanager/Finder an den Speicherort (Desktop/Schreibtisch).
  • Öffnen Sie die BIMx-Datei mit Doppelklick. Es öffnet sich der Desktop-Viewer.
  • Mit einem Doppelklick links oben auf Perspektive öffnet sich das 3D-Modell.
  • Erkunden Sie das Gebäude mit den Pfeiltasten der Tastatur.

Tipps zum BIMx-Export:

  • Wie Sie das Modell aufs mobile Endgerät bringen, lesen Sie in der Kurzhilfe 960 BIMx.
  • Weitere Informationen, Videos etc. finden Sie auch auf der BIMx-Produkteseite.

Sichern

Als letzte Aufgabe speichern Sie das Projekt über das Menü Ablage / Sichern als... Definieren Sie den Speicherort, vergeben einen Namen und bestätigen mit Sichern.


Hinweis:
In der Demoversion ist es nicht möglich zu speichern.